소호 아파트에 거주하는 주인은 화가로 아파트 다락방의 개조를 요청하여 3가지의 공간이 함께 공존하는 아파트가 되었습니다. 해당 소호 아파트는 공간의 개방과 닫음이 잘 이루어져 있으며 재료, 색상과 자연광의 조화가 잘 이루어져 있는 특징이 있습니다.
아파트 리노베이션 디자인

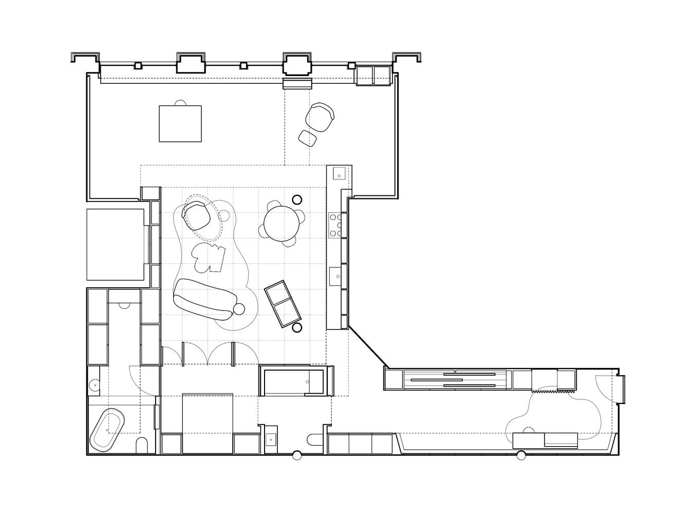
평면도를 보면 작업실, 갤러리, 생활공간이 모두 위치해 있습니다. 중앙을 중심으로 각 공간이 연결되며 원목 도어를 설치하여 침실과의 연결성을 조절하며 벽엔 캐비닛을 설치하여 공간에 볼륨감을 주었습니다.

생활공간 거실의 러그는 연못과 같은 형태로 디자인하여 불규칙한 모양을 띄며 천장의 뚜렷한 격자 디자인 아래에서 모호성을 증폭시킵니다. 건너편에 있는 맞춤형 주방은 벽을 따라 요리에서 스튜디오 공간으로 자연스럽게 미끄러져 가며 전환됩니다.

실내 공간에서 사용된 재료, 색상과 빛이 조화롭게 어우러져 있습니다. 창문을 통해 자연스럽게 유입되는 햇빛은 공간을 부드럽게 연출함과 동시에 깊이를 풍부하게 해 줍니다. 거실 캐비닛 상부에는 간접조명을 설치하여 따뜻하고 평화로운 분위기를 형성하며 조용한 공간으로 느끼게 디자인되었습니다.
문을 닫으면 마치 붙박이 수납장처럼 느껴져 공간을 숨길 수 있는 장점이 있습니다. 요즘 아파트에서 히든도어 인테리어를 많이 진행하는데 어떻게 보면 히든도어라고 볼 수 있습니다


간결한 선과 부드러운 라인이 잘 어울리며 깔끔한 화이트와 원목이 공간을 아늑하게 해 줍니다. 폭신한 소파에 앉아서 책 한 권 읽기 좋은 분위기입니다.
거실 옆쪽 공간에는 화이트 벽면으로 디자인하여 예술에 집중할 수 있도록 디자인되었습니다. 작품을 걸어놓아 예술성을 높였으며 테이블 또한 동일한 화이트를 사용하여 통일감이 느껴집니다

침실 옆 긴 공간에는 작은 갤러리를 설계하였습니다. 스포트라이트 조명을 작품에 비치게 하여 강조를 하면서 불필요한 가구가 없어서 아파트라기보다 정말 갤러리에 온 듯한 기분이 들게 디자인되어 있습니다.

침실은 특별한 디자인은 아니지만 원목과 차분한 네이비 컬러 침구를 사용하여 차분한 인테리어입니다. 벽엔 디자인이 들어가 있으나 눈에 거슬리지 않으며 작은 액자를 부착하여 예술가의 집을 완성하였네요.

- Architects: Diane Lewis Architecture, Fuller/Overby Architecture
- Area: 1200 ft²
- Year: 2021






Three kinds of spaces are woven together within a classic New York City cast iron building – a working studio, a gallery, and a living space. The client, a painter, commissioned a gut renovation of a neglected loft directly above Walter De Maria’s Dia Earth Room. Situated in one of the original Fluxhouse cooperatives, this location was a generator of Soho’s 1970s transformation from a warehouse district to an artistic neighborhood.
출처: Archdaily
'닮고싶은 인테리어 디자인' 카테고리의 다른 글
| 심플한 전시장같은 아파트 인테리어 Painter's Apartment simple interior (0) | 2023.08.24 |
|---|---|
| 주택 거실 주방 미니멀 우드 인테리어 house minimal interior (0) | 2023.08.23 |
| 10평 아이있는 좁은 아파트 세컨드하우스 인테리어 small apartment interior (0) | 2023.08.12 |
| 북유럽 스타일 미니멀 인테리어 Minimal Holiday Houses (0) | 2023.08.11 |
| 아파트 그린 인테리어 따라하기 Grey Green Residence a minimal home (0) | 2023.08.09 |
댓글