브라질에 위치한 113㎡의 면적을 가진 아파트입니다. 무용가이자 예술가인 집주인은 아파트에 춤을 출 수 있는 댄스룸이 있기를 원했습니다.
30평대 아파트 개조 인테리어

- category interior
- date 2022
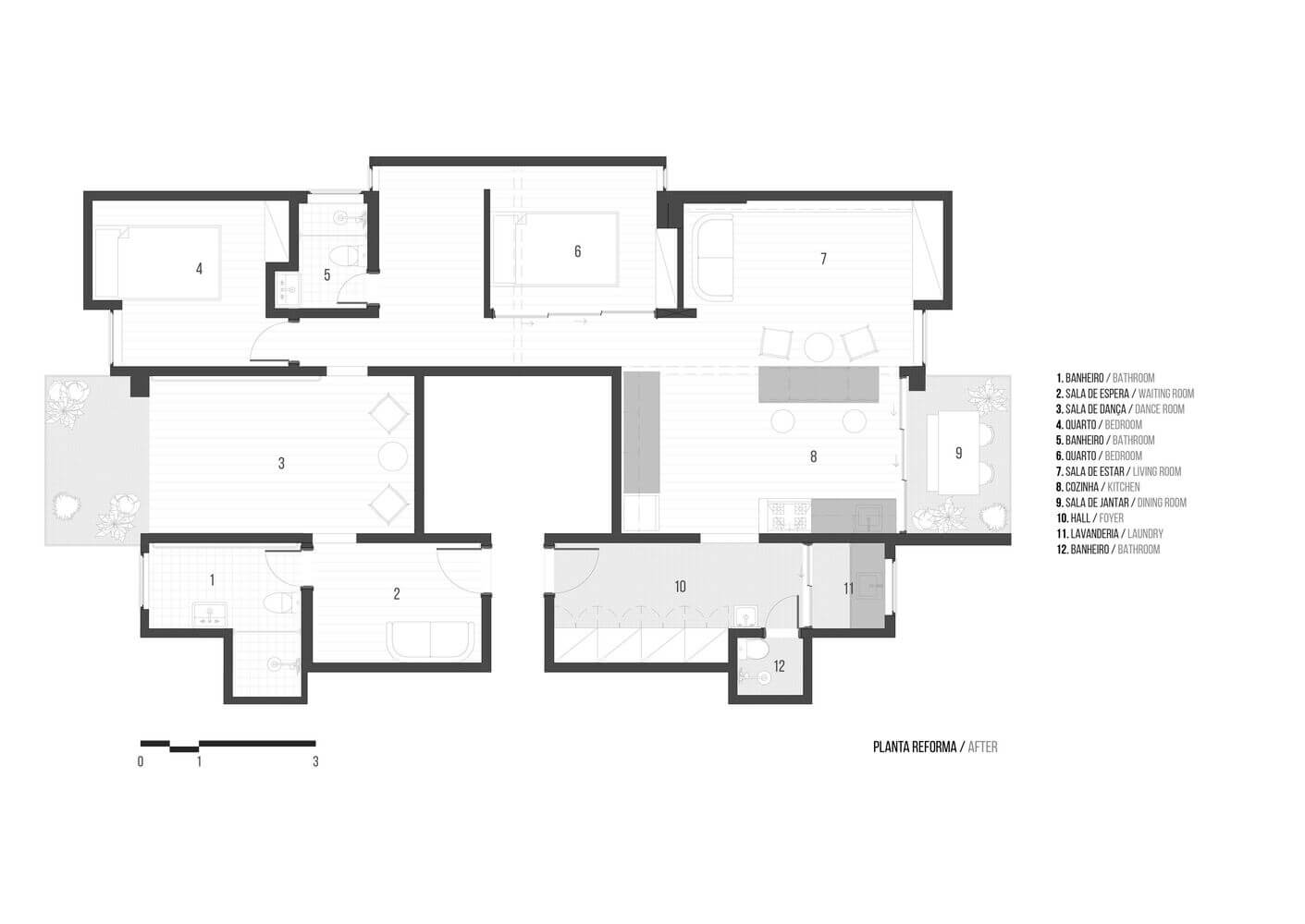
리모델링 전에는 거실과 침실 2개로 이루어진 일반적인 구조였습니다. 6번이 거실 겸 주방이 함께 있는 공간이며 2,3번은 침실, 5번은 TV를 시청할 수 있는 공간입니다.
집주인의 니즈대로 자유롭게 춤을 출 수 있는 공간을 만들기 위해 기존 공간의 성격을 바꾸거나 가벽을 추가로 설치하여 구획을 변경했습니다.


기존 2번의 침실 공간을 댄스룸으로 변화시켰습니다.
이 공간에서 기존 유리문을 제거하고 식물을 배치하였으며 야외와 접근이 가능하도록 설계하였습니다. 또한 욕실이 위치하여 바로 씻을 수 있는 장점이 존재합니다.

약 2.70*4.60m의 공간으로 원목 바닥으로 마감되었으며 벽 한쪽에는 거울을, 반대 벽에는 발레 바를 설치하였습니다. 댄스를 하며 음악 소리를 줄여야 할 때는 커튼을 닫아 소음을 차단할 수 있습니다.

집에 있는 가구의 독특한 점은 바퀴가 달려있다는 것입니다. 때문에 필요에 따라 가구가 집안의 다른 공간에 있을 때도 있습니다. 이동이 가능하기 때문에 자유롭게 위치 변경이 가능하다는 장점이 있습니다.
주방과 발코니 정원이 통합되어 있어 넓고 통풍이 잘 되는 공간이 제공되며 거실과 함께 붙어있기 때문에 가족과 단란한 시간을 보낼 수 있습니다.


독특한 점은 현관 로비와 주방이 이어진다는 점으로 한국과 차이가 있습니다. 아래 사진에서 보이는 녹색 붙박이장이 있는 공간은 Foyer이라는 곳으로 주택이나 아파트의 현관 공간입니다.

주방에서 바라본 6번 침실 공간입니다. 애칭유리문을 두어 시각적인 차단을 줌과 동시에 공간 구획까지 되어 있습니다.

The Nômade Apartment is located in Brasília, at SQN 210 Bloco F, and has 113m². Its realization was the result of an extensive and labyrinthine creative process. The project began in 2019 and, with ups and downs, was completed in 2021. Its execution took place in 2022.
The client, a psychologist, artist, and dancer, invited us to think about a renovation to include a dance room in her apartment, which is actually the combination of the last two apartments in the building. It now results in a crossed apartment, with a symmetrical layout and a very peculiar design.
During the survey phase, we noticed that many of the existing furniture had wheels and that with each visit, the furniture occupied different places in the house. The bed was where the living room used to be and the office occupied the former bedroom. The refrigerator went to the service area and the stove was closer to the window, where the view was more beautiful.
Hence the name Nômade: the creation of a space for movement, multi-creative, open to changes and adaptations, without a definitive conclusion and in constant transformation.
In the design, we defined one entrance for the house and the other entrance, opposite, the dance room. In the house, the social access is through the former service entrance, now a spacious hall with a toilet, closets, and an area. The living room was integrated with the kitchen and the balcony/garden, allowing for a spacious and airy space. In the corridor that connects both sides, two rooms with sliding doors alternate between a bedroom, a workspace, or a guest room.
In the dance area, access is through the foyer, which has a small pantry and a bathroom. The dance room is a free space of 2.70x4.60m with a wooden floor, a mirrored wall, and a ballet bar. The former balcony has now been adapted into an internal garden for the room. Heavy curtains close the garden when it is necessary to muffle the sound of the music.
We practically dismantled the entire structure of the apartment, creating an environment that is simultaneously light and robust. On the floor, the ipê wood planks run throughout the social and dance areas. In the apartment's access hall, the floor was made with a reproduction of the hydraulic tiles that covered the client's grandfather's farmhouse, rescuing an emotional value with her family.
출처: Archdaily
'닮고싶은 인테리어 디자인' 카테고리의 다른 글
| 차분한 아파트인테리어 예쁜집 고급스러운 이미지연출하기 (0) | 2023.09.16 |
|---|---|
| 미니멀라이프를 즐길 수 있는 주택 우드인테리어 (0) | 2023.09.13 |
| 심플한 전시장같은 아파트 인테리어 Painter's Apartment simple interior (0) | 2023.08.24 |
| 주택 거실 주방 미니멀 우드 인테리어 house minimal interior (0) | 2023.08.23 |
| 30평 소호 아파트 인테리어 리노베이션 Soho Art Loft (1) | 2023.08.18 |
댓글