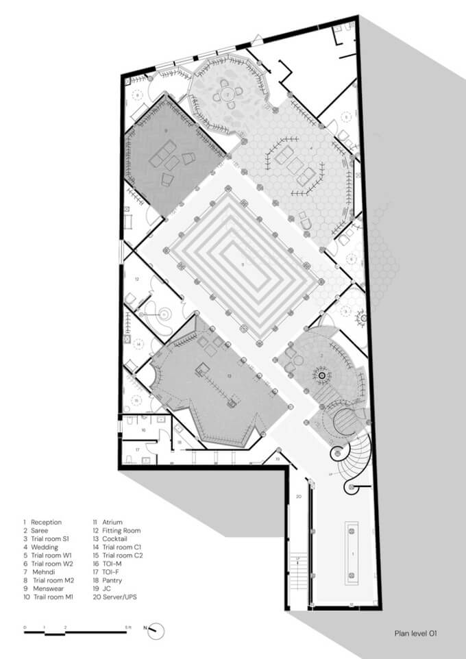
뉴델리 단 밀스에 위치한 SG 플래그십 스토어는 레세나의 최신 리테일 매장으로, 레세나의 포트폴리오에서 엄선된 요소들을 모아 SG의 최고급 디자인을 전시하는 공간을 구축하는 프로젝트입니다.
조용한 고급스러움은 전시된 SG 컬렉션과 디자인 철학에 따라 각각 고유하게 디자인된 섹션으로 이어지는 최소한의 우아한 디자인을 통해 그 존재감을 드러냅니다.
플래그십 스토어 인테리어 디자인

시각적 요소를 통한 공간 분할과 다양한 스케일 및 깔때기형 동선은 처음 방문하는 사람도 쉽게 탐색할 수 있도록 하여 예비 신랑과 신부가 특별한 날을 위한 감정이 중심이 될 수 있도록 합니다.
클라이언트는 자신의 작품처럼 전통과 현대가 조화를 이루는 공간을 구상했고, 레세나 팀은 구상한 비주얼을 반영하고 고객 중심의 디자인 감성을 부여하여 이 비전을 실현했습니다. 이 매장은 7500평방 피트 면적의 공용 1층과 1500평방 피트 면적의 메자닌 층에 프라이빗 오피스 공간을 갖추고 있으며 1층의 높이가 두 배로 늘어났습니다.



시마 구즈랄의 작품은 인도 전통의 아름다움을 반영하는 동시에 현대적인 관점을 접목한 정교한 디테일로 평범함과는 차별화됩니다. 세마 구즈랄의 앙상블에서 느껴지는 조용한 고급스러움은 이 플래그십 스토어의 환경에도 그대로 녹아 있습니다.


르네 사는 볼륨감 있는 안뜰의 전통적인 공간 디자인을 촘촘하고 소박하지만 디테일이 풍부한 골목길로 연결하여 각기 다른 다섯 개의 섹션으로 나뉘는 독특한 Seema Gujral 컬렉션을 선보입니다. 이 컬렉션은 서식지에서 영감을 받아 이 웅장한 작품에 스포트라이트를 비춥니다. 이 둘의 조화는 브랜드 아이덴티티에 대한 Renesa의 헌신을 반영합니다.


관람객이 입장하면 블랙과 화이트의 깔끔한 라인이 관람객을 맞이하고, 그 안에 웅장한 황동 깔때기 모양이 등장하여 앞으로 펼쳐질 풍성한 시각적 즐거움을 예고합니다. 황동 소재의 디테일이 매장 곳곳에서 드러나며 다양한 테마의 일관성을 유지합니다.

또한 웅장한 스케일의 펜던트는 기하학적인 천장과 파리지앵을 연결하여 과도기적 디자인에 대한 시마 구즈랄의 철학을 미묘하게 드러냅니다.
칵테일 섹션에서는 직교를 포기하고 보다 역동적인 비스듬한 기하학적 구조를 위해 금속 시트가 반란을 일으킵니다. 다른 곳의 흙빛 테마는 또 다른 관점, 즉 같은 앙상블을 안고 포용할 수 있는 또 다른 랩을 제공합니다.


이 브랜드는 인도의 전통적인 미학에 현대적인 시각을 더해 매장 테마에 영감을 불어넣었습니다. 사리 섹션의 흙빛 요소, 칵테일 섹션의 아방가르드한 메탈릭 시트, 남성 섹션의 파리지앵적인 매력, 할지 섹션의 그리드 메쉬가 힌두교식 제단의 무대를 형성하는 웅장한 두 배 높이의 안뜰을 중심으로 어우러져 있습니다.


이 테마는 현대 커플의 열정을 인정하면서 인도 전통 결혼식에 대한 찬사를 보냅니다. 국제적으로 인정받는 시마 구즈랄의 앙상블과 세계적으로 인정받는 르네사의 디자인 감각이 이 프로젝트에서 시너지 효과를 발휘하여 전통을 핵심으로 하면서도 혁신이 돋보이는 공간으로 완성되었습니다.







from archdaily, DepL
'실내 건축 디자인 참고 자료 > 실내' 카테고리의 다른 글
| 브랜드 정체성을 담은 일본의 살롱 인테리어 사례 엿보기 (0) | 2024.03.16 |
|---|---|
| 프로듀서를 위한 고요한 휴식처 미니멀 음악 스튜디오 인테리어 디자인 (0) | 2024.03.15 |
| 편안한 분위기의 인테리어로 힐링하기좋은 카페 디자인 (0) | 2024.03.10 |
| 깔끔한 컨셉의 100평대 사무실 인테리어 (0) | 2024.03.08 |
| 힐링하기 좋은 식물 인테리어 레스토랑 플랜테리어 (0) | 2024.02.25 |
댓글