도시의 혼돈 속에서 독특한 안식처를 만들고자 하는 열망에서 시작된 프로젝트로 좁은 얼굴과 예측할 수 없는 넓은 포켓 면적이 돋보입니다. 이 카페는 바쁜 환경 속에서 숨 쉴 수 있는 공간을 디자인할 수 있는 흔치 않은 기회를 제공합니다.
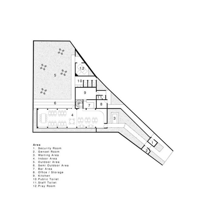
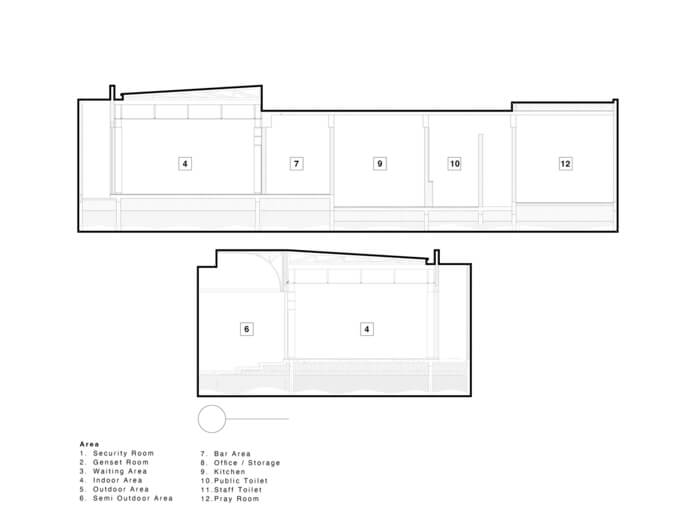
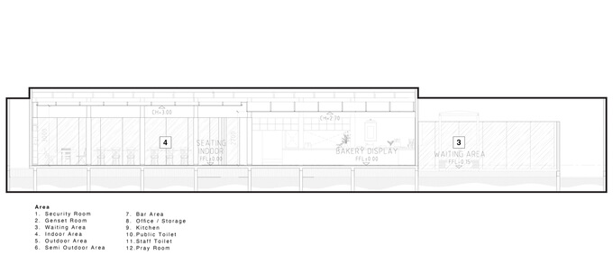
100평대 카페 인테리어

이 프로젝트의 시작은 고객에게 오래도록 기억에 남는 추억을 선사하기 위한 탐구에서 비롯되었습니다. 이는 공간에 편안함과 힐링을 불어넣어 방문하는 모든 사람에게 지속적인 인상을 남기는 데 중점을 둡니다.
한 가지 핵심 요소는 감각적인 경험을 통해 오래도록 기억에 남는 추억을 만드는 것으로 바이야사는 모든 감각을 참여하도록 설계되어 방문객이 외관에 접근하는 순간부터 음식을 즐기기 위해 자리에 앉을 때까지 일련의 공간을 정의하여 통합적인 경험을 선사하고 공간을 순차적으로 여행하도록 유도합니다.

파사드를 통해 호기심을 불러일으키는 데 초점을 맞춰 다른 장소로 이어지는 구멍이라는 아이디어는 외부 세계와 카페의 안식처 사이의 문턱을 나타냅니다. 파사드는 모든 것을 한꺼번에 드러내지 않음으로써 방문객이 보다 적극적이고 상상력 있는 방식으로 공간에 참여하도록 유도합니다
바이아사 카페의 전환은 거울, 초목, 나무가 늘어선 통로에서 시작되는 세심하게 만들어진 경험입니다. 이 거울은 주변을 반사하여 움직이는 듯한 느낌을 줍니다. 체험의 강렬함에도 불구하고 이 통로는 단순하고 접근하기 쉽도록 설계되어 위압감이나 신성함을 느끼지 않도록 했습니다. 방문객의 속도를 늦추고 잠시 시간을 내어 주변 환경에 집중할 수 있도록 유도하는 것이 목표입니다.


전략적으로 배치된 조명은 입구와 같은 공간에 시선을 집중시켜 깊이감을 조성하고 방문객을 공간으로 안내합니다. 특히 유리와 같은 소재를 통해 빛이 확산될 때 따뜻하고 포근한 분위기가 조성됩니다. 감각적인 여정을 이어가면서 방문객이 유리문으로 다가서면 빛이 살짝 비치는 순간, 외부 세계에서 카페 내부의 안식처로 전환되는 순간이 강조됩니다.
바이아사 카페의 인테리어는 오두막집을 연상시키는 아늑하고 포근한 분위기를 연출하도록 디자인되었습니다. 따뜻한 조명과 자연스러운 색감과 같은 시각적 요소가 전체적인 아늑함을 더합니다. 집과 같은 느낌을 주는 데 중점을 둔 인테리어로 포근하고 매력적인 공간에 초점을 맞췄습니다. 천장의 다양한 높이와 확장감은 방문객을 카페로 안내하는 공간적 시퀀스를 만들어 방문객을 발견의 여정으로 이끌고 있습니다.


이 공간 여행의 클라이맥스는 마지막의 예상치 못한 공간으로, 방문객들은 거울로 둘러싸인 나무로 가득한 탁 트인 공간에서 맞이하게 됩니다. 바람에 의해 움직이는 초목과 나무가 반사되어 움직임이 느껴지고 가장자리가 흐려져 주변 도시 환경으로부터 시선을 분산시킵니다. 거울은 시각적 착시를 일으켜 주변 건물에 둘러싸여 있음에도 불구하고 공간이 더욱 자연스럽고 한적한 느낌을 줍니다.



바이아사 카페의 강렬한 소재와 수직적 요소의 반복은 응집력 있고 조화로운 미학을 창출하고 방문객이 주변 환경을 더 잘 인식하도록 하는 두 가지 목적을 가지고 있습니다.


빛과 나뭇잎의 상호작용은 끊임없이 시선을 분산시키고 끊임없이 움직이는 역할을 합니다. 바스락거리는 나뭇잎과 보라색 분수 잔디, 자갈 등 식물의 생생한 색감을 통해 가을의 정취를 느낄 수 있는 바야사 카페. 이 따뜻한 색상은 아늑함과 편안함에 대한 강한 열망을 불러일으킵니다.









from archdaily, DepL
'실내 건축 디자인 참고 자료 > 실내' 카테고리의 다른 글
| 브랜드 정체성을 담은 일본의 살롱 인테리어 사례 엿보기 (0) | 2024.03.16 |
|---|---|
| 프로듀서를 위한 고요한 휴식처 미니멀 음악 스튜디오 인테리어 디자인 (0) | 2024.03.15 |
| 깔끔한 컨셉의 100평대 사무실 인테리어 (0) | 2024.03.08 |
| 힐링하기 좋은 식물 인테리어 레스토랑 플랜테리어 (0) | 2024.02.25 |
| 현대적인 아카데미 학원 디자인 리모델링 (0) | 2024.02.20 |
댓글