브라질 내륙, 특히 중서부 지역, 고이아스에서 이키가이 레스토랑 프로젝트는 미식과 정원 가꾸기라는 두 가지 열정을 조화시키는 것을 목표로 합니다. 또한 방문객들이 번잡한 도시 생활에서 벗어나 고요한 환경과 연결될 수 있는 경험을 제공합니다.
이 레스토랑은 평화와 단순함의 경험을 제공하고자 노력하며 진정으로 숭고하고 자연스러운 것을 엿볼 수 있습니다.
플렌테리어 레스토랑 디자인

진정성과 자연스러움에 대한 추구는 프로젝트의 다양한 측면에 스며들어 있습니다. 원재료, 노출된 설치물, 드러난 구조물, 철제 의자와 같은 가구의 단순함은 현지 문화의 정체성을 반영하는 것을 목표로 합니다.

식물의 아름다움과 형태가 공간을 가득 채우며 이곳을 자주 찾는 사람들의 마음을 사로잡습니다. 물거울을 설치해 사색과 휴식을 취할 수 있는 공간을 마련하여 자연에 몰입하는 듯한 느낌을 줍니다. 이 프로젝트는 풍부한 자연 채광과 환기와 함께 레스토랑을 일시적인 휴식처로 탈바꿈시키고자 합니다.



레스토랑의 운영은 기술적인 부분을 수용하기 위해 개조된 오래된 주택을 사용했습니다. 주방은 메인 홀과 시각적으로 통합되어 있어 셰프와 고객이 직접 소통할 수 있습니다. 대형 유리 입구는 시각적 연결을 만들어 미식 과정에 관심이 있는 사람들을 끌어들이는 무대로 변신합니다.


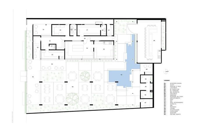
프로젝트에 통합된 인근 부지에는 리셉션, 대기실, 테이블을 위한 다이닝 홀 등 고객을 위한 공간이 마련되어 있습니다. 금속 메쉬는 지붕이 덮인 공간을 묘사하고 빈 공간을 통해 안뜰을 강조합니다. 테이블, 조경, 워터 미러는 기하학적 시스템으로 통합되어 바닥과 지붕에 단순한 메시를 형성합니다. 보이드, 시선, 바닥, 벽, 천장을 차지하는 조경은 처음에는 단순해 보이는 구조에 복잡함을 더합니다.


취미로 식물을 심고 가꾸는 것을 즐기는 주인은 이 공간을 묘목을 고객에게 판매하는 종묘장으로 탈바꿈시켜 레스토랑의 조경을 끊임없이 변화시키고 있습니다.




이 프로젝트에는 특별한 미식 서비스와 고객 서비스를 위한 오마카세 스타일의 주방이 포함되어 있습니다. 이 공간에는 고객을 맞이하는 중앙 카운터가 있으며, 셰프가 시그니처 요리를 만들고 테스트하고 코스를 진행하며 가상 콘텐츠를 제작하는 주방 실험실 역할을 합니다. 랜턴을 닮은 나무 펜던트 하나가 요리와 미식 작품을 독점적으로 비추는 장면을 통해 극적 효과를 더합니다.





이 두 가지 기능을 완벽하게 통합하여 사용자에게 두 가지 장점을 모두 제공하는 레스토랑-보육원이 되는 장소의 실현이 분명합니다.

from archdaily, DepL
'실내 건축 디자인 참고 자료 > 실내' 카테고리의 다른 글
| 편안한 분위기의 인테리어로 힐링하기좋은 카페 디자인 (0) | 2024.03.10 |
|---|---|
| 깔끔한 컨셉의 100평대 사무실 인테리어 (0) | 2024.03.08 |
| 현대적인 아카데미 학원 디자인 리모델링 (0) | 2024.02.20 |
| 친환경 레스토랑 바 건축 인테리어 디자인 (0) | 2024.02.19 |
| 창의력을 향상시켜주는 사무실 인테리어 업무 공간 (0) | 2024.02.16 |
댓글