판촉, 인테리어, 디스플레이 서비스를 제공하는 오랜 전통의 기업의 신사옥 이전을 위한 인테리어 디자인 프로젝트입니다. 프로젝트 현장은 일본의 하라주쿠역에서 센다가야 방향으로 도보로 가까운 거리에 패션 브랜드 사무실이 밀집한 지역에 위치해 있습니다.
이 프로젝트는 지하 1층, 지상 3층의 기존 건물을 활용하며 원래 직업학교였던 이 건물은 사무 공간, 쇼룸, 임대 공간으로 개조되었습니다.
오피스 인테리어

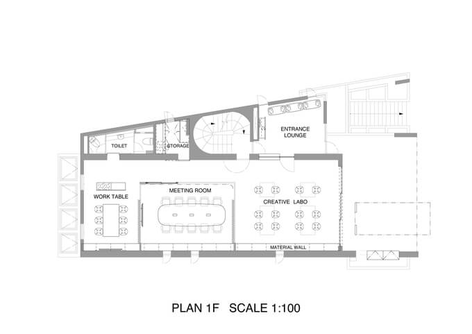
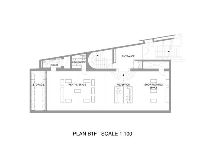
입구는 쇼룸과 임대 공간이 있는 지하층과 방문객과의 미팅이 이루어지는 1층에 두 개가 있습니다.
건물은 남쪽에 창문이 있지만 주변에 건물이 많기 때문에 건물 상층부로 자연 채광이 더 잘 들어옵니다.


지하층은 화강암으로 만들어져 자연 채광이 들어오지 않습니다. 독특한 분위기의 바닥을 유연하게 활용할 수 있도록 입구 앞에 커튼레일을 설치해 커튼으로 공간을 분리했습니다. 모든 용도에 적합하면서도 무거운 분위기를 연출하지 않는 은색을 메인 컬러로 사용했습니다.



2층과 3층은 오피스 기능에 사용됩니다. 각 층의 기존 조건을 최대한 살리면서 각 층의 레이아웃에 맞게 대형 테이블을 최대한 배치했습니다. 이를 통해 각 부서가 지향하는 업무 스타일을 실현할 수 있습니다.
테이블은 린든 합판으로 제작하였으며, 기존 사물함 시스템을 보관하는 설비도 린든 합판으로 제작했습니다.



1층은 기존 목재 데크가 있던 출입구를 미닫이 유리문으로 교체하고, 유리 칸막이로 분리된 회의실을 바닥 중앙에 배치해 자연광이 바닥 뒤쪽까지 최대한 투과되도록 하면서도 기밀 유지 수준에 따라 회의 장소를 선택할 수 있도록 했습니다. 맨 끝에 있는 공간은 커튼으로 분리할 수 있어 업무 공간, 회의실 또는 수납공간으로 사용할 수 있습니다.









from archdaily, DepL
'실내 건축 디자인 참고 자료 > 실내' 카테고리의 다른 글
| 프로듀서를 위한 고요한 휴식처 미니멀 음악 스튜디오 인테리어 디자인 (0) | 2024.03.15 |
|---|---|
| 편안한 분위기의 인테리어로 힐링하기좋은 카페 디자인 (0) | 2024.03.10 |
| 힐링하기 좋은 식물 인테리어 레스토랑 플랜테리어 (0) | 2024.02.25 |
| 현대적인 아카데미 학원 디자인 리모델링 (0) | 2024.02.20 |
| 친환경 레스토랑 바 건축 인테리어 디자인 (0) | 2024.02.19 |
댓글