안녕하세요. yyeon입니다.
저번 카페 리모델링 인테리어에이어서 이번에도 해외의 카페 리모델링 예시를 가지고 왔습니다. 이번에는 베트남에 위치한 카페 인테리어로 저예산으로 리모델링이 이루어졌다고 합니다. 코로나 팬데믹 시기에 보수 비용을 최소화하였으며 오래된 건축 양식을 리모델링하여 새로운 디자인을 도입한 것이 이 카페의 가장 큰 특징입니다.
저번 포스팅에서는 과거의 재료를 그대로 보존하여 과거와 현대적인 감성을 한 번에 느낄 수 있는 카페 디자인이었다면, 이번에는 오래된 건축 양식을 새로운 디자인으로 탈바꿈하여 현대적인 감성을 느낄 수 있습니다. 그럼 바로 보러 가볼까요?
카페 리모델링 현대적 인테리어
베트남에 위치한 커피숍으로 300㎡의 면적으로 약 90평대로 넓은 평수입니다. 카페의 이름은 coco cha tea&coffee로 판랑시의 주요 도로의 모퉁이에 위치해 있습니다. 판랑시의 새로운 도시 지역에 있어 서양으로부터 직접적인 햇빛을 받는다는 특징을 가지고 있어서 리모델링 시 외부를 직접 볼 수 있을 뿐만 아니라 빛을 확보할 수 있는 견고하면서 비어있는 공간을 계획했다고 합니다. 그 결과 현대적이면서 모든 연령층이 공간을 즐길 수 있는 카페가 되었다고 합니다.
coco cha 카페의 아이소메트릭입니다. 한눈에 보았을 때 화이트의 깔끔함과 가운데 홀의 void공간으로 인해 답답함이 느껴지지 않습니다. 또한, 2층의 벽을 유리블록과 사이사이 있는 창문으로 인해 개방감과 밝은 이미지가 느껴집니다.

1층에 위치한 유리창은 주변 대지의 위치에 따라 적절하게 배치되어 있어 외부를 관찰할 수 있다는 특징을 가지고 있습니다. 이 위의 파사드는 유리벽돌로 디자인되어 반투명한 색상이 낮에는 빛을 은은하게 투과시켜 주며 밤에는 빛을 내는 등불의 역할을 합니다. 판랑시는 햇빛과 바람이 가득한 작은 도시로 실내 공간이 가능한 한 통풍이 잘 이뤄져야 하기 때문에 설계 시 위층 파사드를 유리블록을 사용했음을 알 수 있습니다.
대한민국의 카페 디자인을 살펴보면 유리블록을 실내에서 사용하는 곳을 종종 볼 수 있습니다. 아직까진 외부 파사드로 유리블록을 사용한 카페가 많지는 않으나 시도하고 있음을 알 수 있습니다. 한국에서도 다양한 재료를 시도하는 카페들이 많아졌으면 좋겠습니다.

1층의 홀의 메인 공간입니다. 전체적으로 화이트 색감 메인으로 스틸, 유리 재료를 사용했음을 확인할 수 있습니다. 스틸과 유리 재료를 사용함으로써 공간이 세련되면서도 현대적인 감성이 느껴집니다. 곳곳에 식물과 원목 테이블을 두어 내추럴하며 따뜻한 공간이 연출될 수 있도록 신경 쓴 인테리어입니다.
원목 테이블 위에는 비슷한 크기의 유리 디자인을 두어 사람들의 움직임으로 인해 발생하는 생동감을 주었으며 홀의 포인트 요소로 사용되었습니다. 주변의 유리블록과 스틸, 벽의 거울과 잘 어우러져서 이질적인 느낌이 없이 잘 어울립니다.

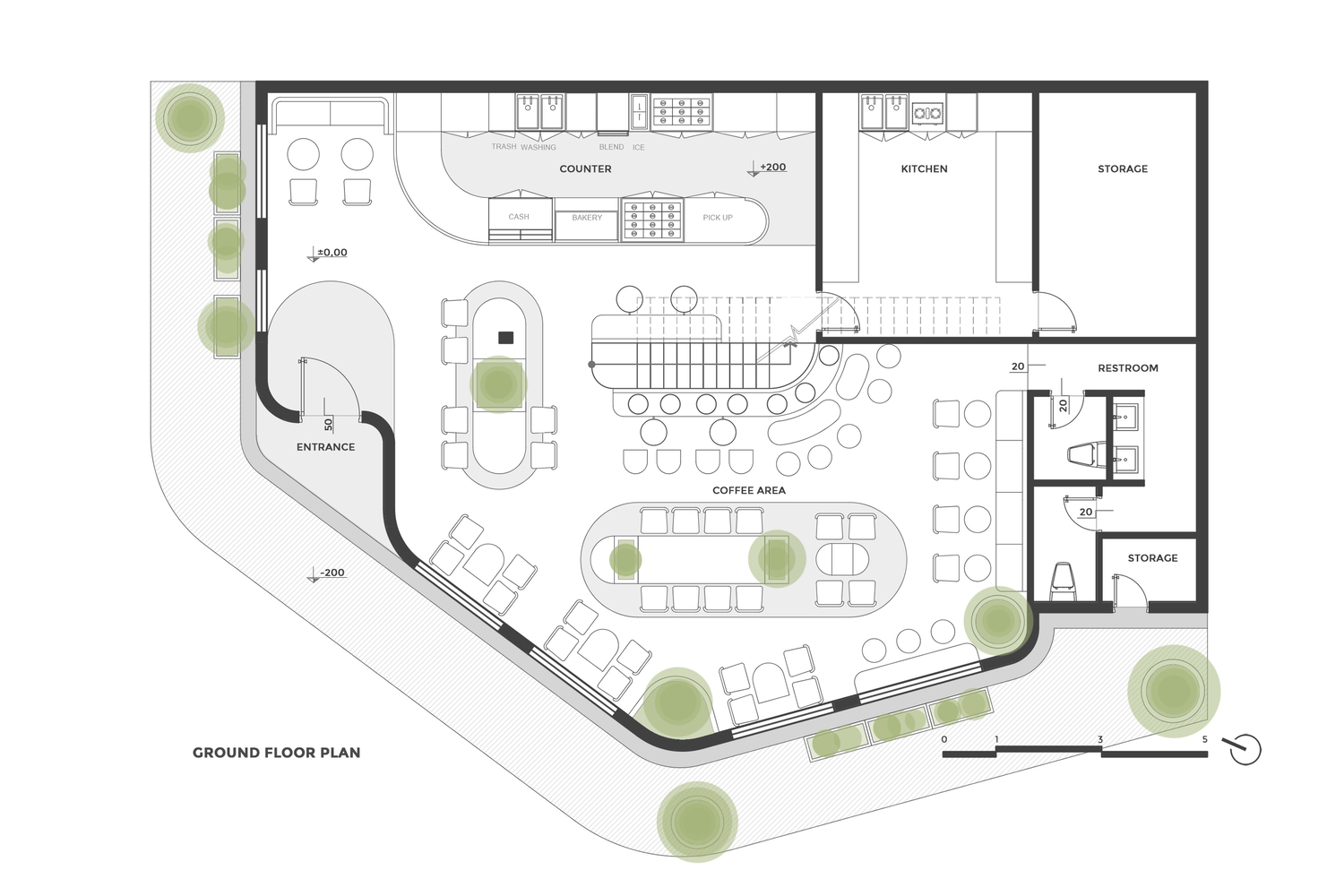
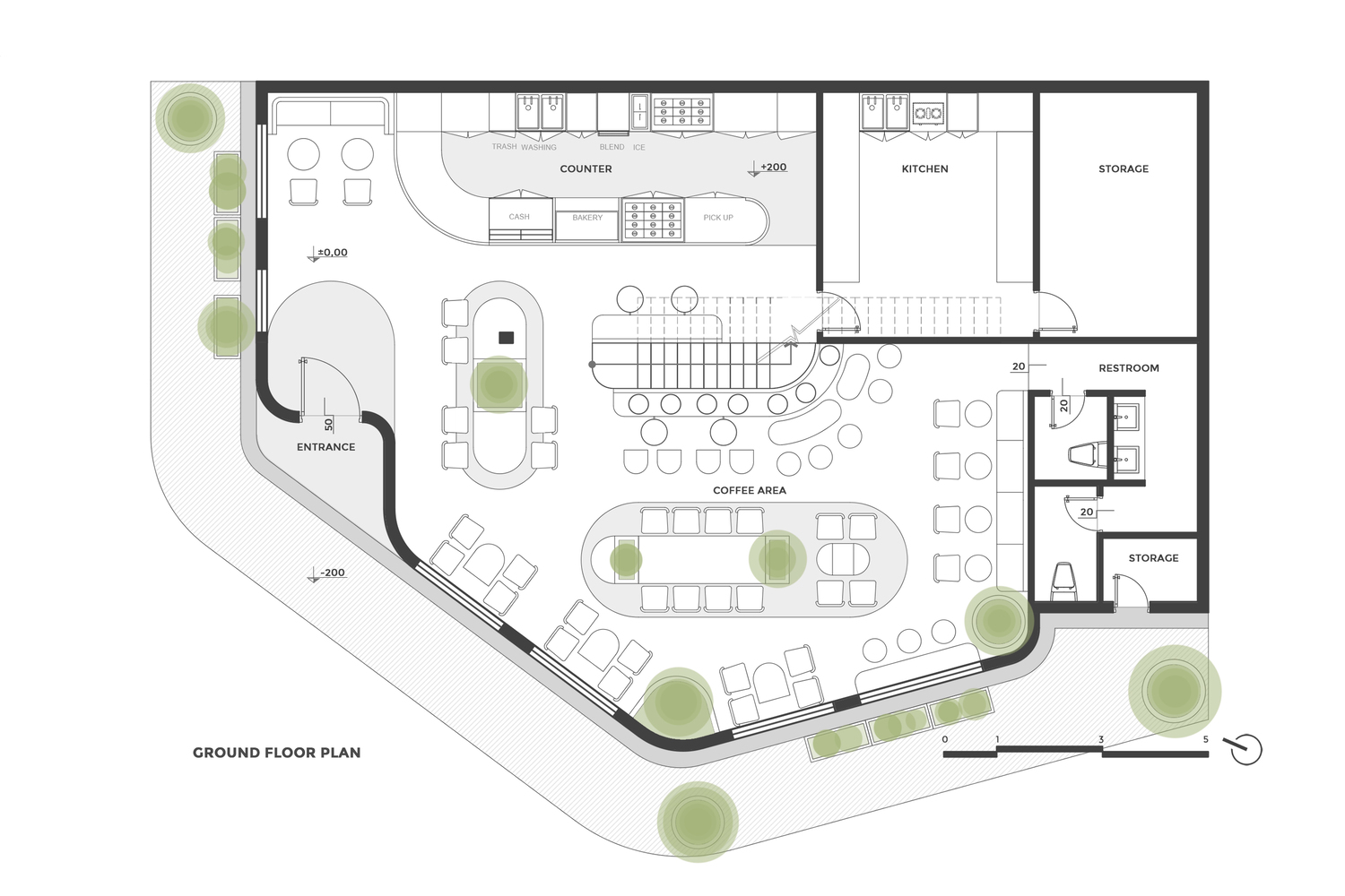
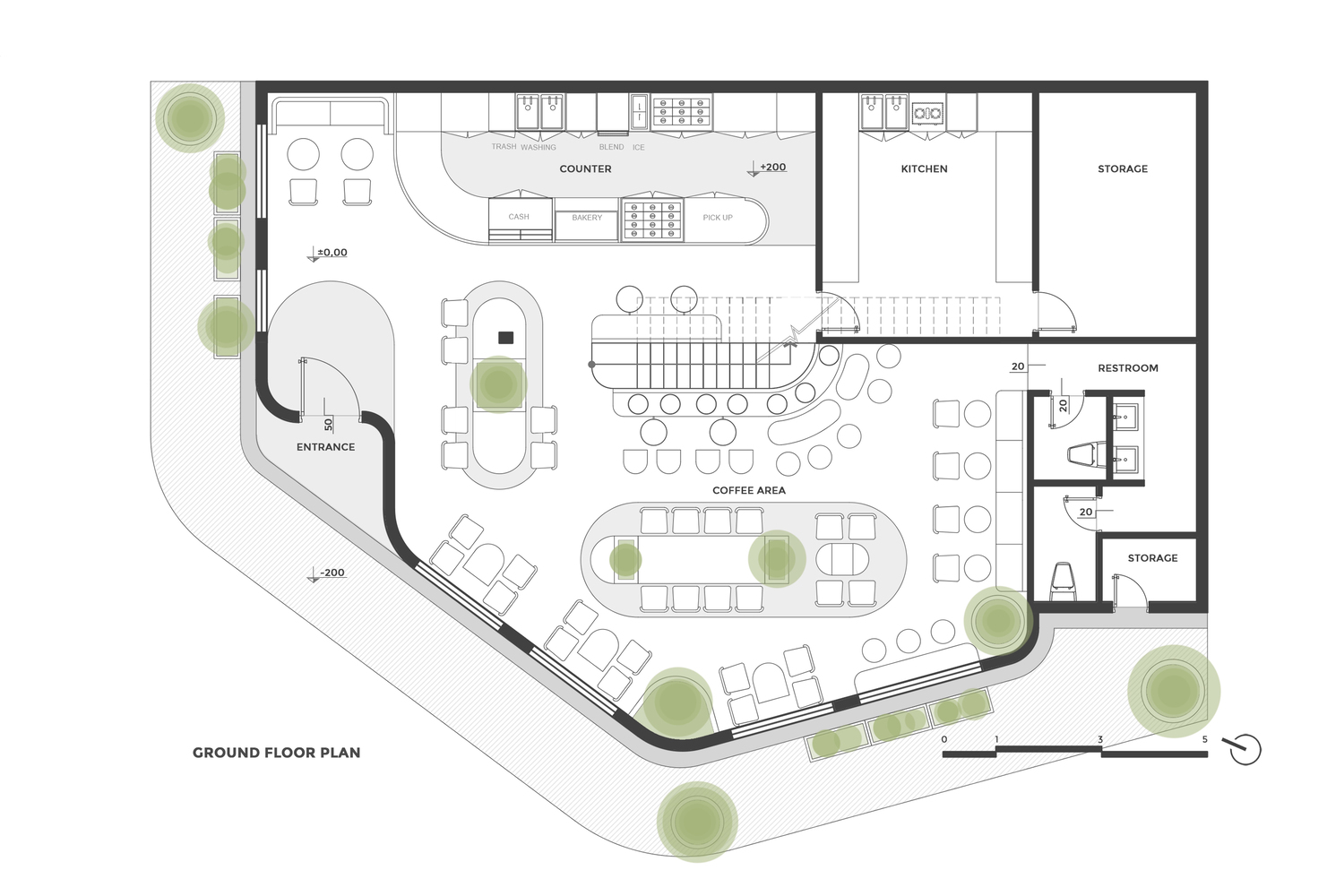
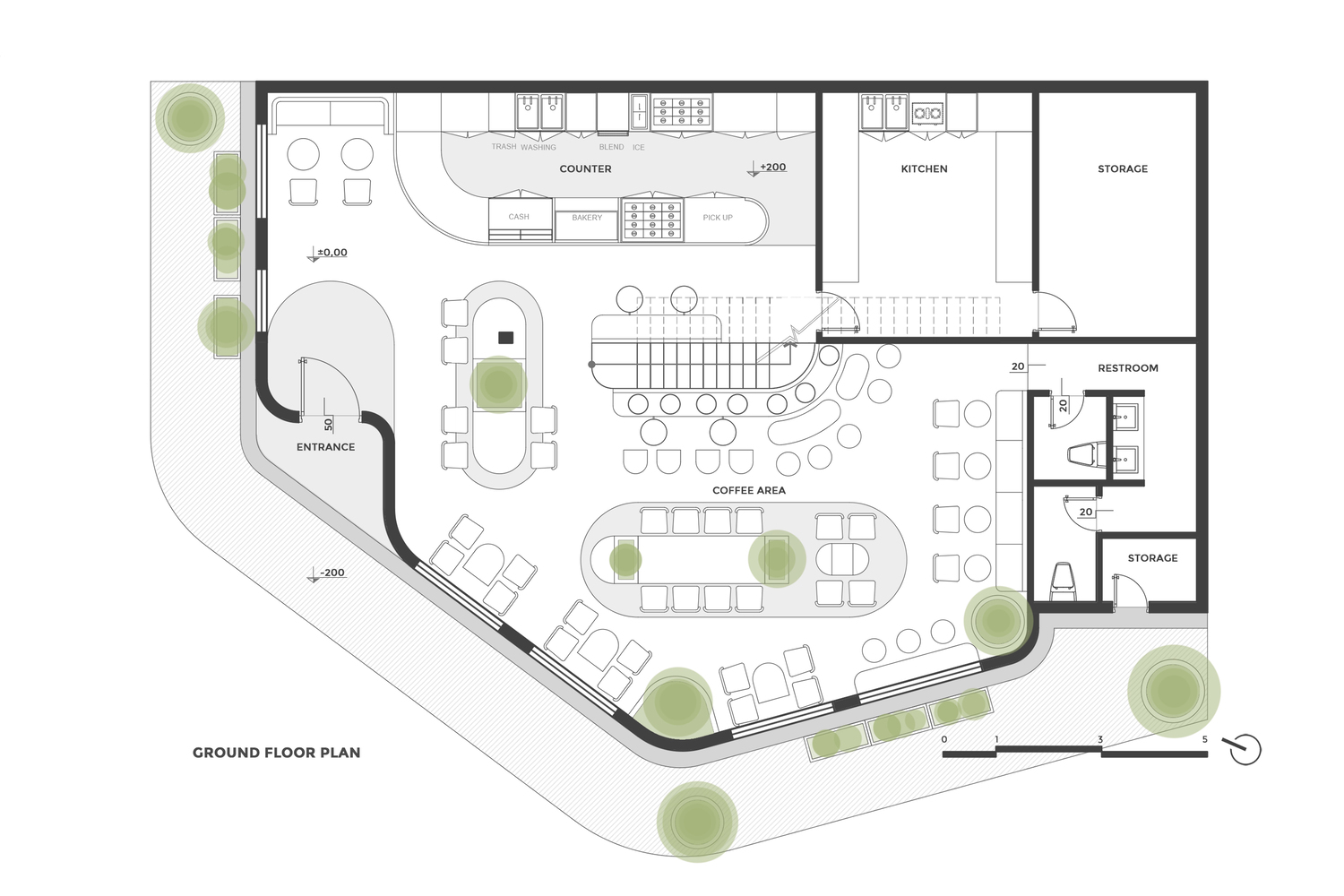
1층은 카운터와 주방 및 창고가 넓은 것을 보니 직원들을 위한 공간이 설계 시 충분히 고려되었다는 것을 알 수 있습니다.
계단은 리모델링 비용을 최소화하기 위해 위치를 변경하지 않고 그대로 두었습니다. 도면을 보면 2층에서 2개의 방향으로 나뉘는 것을 확인할 수 있습니다. 접근구역이 2개인 것을 보아 카페 타깃을 분류하여 구역을 구분했다는 것을 알 수 있습니다.

1층의 메인 홀 위는 void space를 계획하여 개방적이며 유리블록을 통해 충분한 자연광을 받을 수 있습니다. 카페를 방문하는 손님들은 넓고 높은 아트리움 공간으로 인해 편안함과 개방감을 느낄 수 있겠네요.
낮에는 유리블록과 창문을 통해 들어오는 햇빛으로 밝은 환경을 만들 수 있으며 저녁에는 레일조명으로 인해 공간의 밝기를 유지할 수 있습니다. 레일 조명 외에도 높은 천장으로부터 길게 뻗어 내려오는 펜던트 조명이 보조적인 역할을 맡고 있습니다.

다음으로는 2층입니다.
2층의 경우 계단에서 2개의 교차로로 나뉩니다. 오른쪽은 키즈공간으로 아이들을 위한 공간이 준비되어 있으며 가운데 공간과 왼쪽 공간은 커피를 즐길 수 있는 공간입니다. 2층은 평평한 바닥면이 아닌 바닥면의 높이를 차이를 주었다는 것을 도면을 통해 확인할 수 있습니다.

커피를 즐기는 공간을 중심으로 살펴보겠습니다. 2층은 주로 유리블록으로 밝고 화사한 분위기가 연출됩니다. 전체적으로 메인 컬러가 화이트 계열을 사용하였으나 밝은 색상만을 사용할 경우 공간이 가벼워 보이고 불안정해 보일 수 있는 단점이 있습니다. 공간에 균형 있는 무게감을 주기 위해 의자를 어두운 회색 계열을 사용하여 시각적으로 안정감을 형성함을 알 수 있습니다. 카페인테리어나 아파트인테리어를 진행할 때 밝은 색상 선택은 공간을 넓고 화사하게 연출이 가능하오나 시각적인 균형을 맞춰서 디자인하시길 바랍니다.

앞에서 바라보았을 때는 이런 모습입니다. 사람이 일어서 있을 때의 눈높이와 바테이블에 앉았을 때 보이는 높이를 고려하여 얇고 긴 형태의 창문이 있습니다. 불투명한 유리블록으로 인해 다소 답답해 보일 수 있는 공간에 여유를 준 센스 있는 설계입니다.

2층의 커피를 마시는 공간에 void space가 형성되어 1층과 수직적인 연결이 이루어졌습니다. 옆쪽에 보이는 아이들을 위한 놀이공간에는 안전을 위해 유리창이 설치되어 있습니다.

출처: ArchDaily
이상으로 베트남에 위치한 현대적인 카페인테리어 사례에 대해 살펴보았습니다. 지역의 특성을 고려해서 디자인된 카페로서 공간의 장점을 잘 살린 사례입니다. 비슷한 재료의 사용과 밝은 분위기 그리고 디자인요소의 균형이 잘 어우러져 있으며 유리블록으로 인해 세련된 분위기가 연출되고 있습니다. 카페인테리어나 카페리모델링디자인을 고려하고 계신다면 이런 카페 디자인은 어떠실까요? 실내의 작은 인테리어적 요소뿐만 아니라 멋진 파사드 디자인으로서도 사용이 가능합니다.
그럼 다음 포스팅에서 만나요!
'닮고싶은 인테리어 디자인' 카테고리의 다른 글
| 20평대 좁은 아파트 수납 인테리어 아이디어 (0) | 2023.06.20 |
|---|---|
| 30평대 아파트 인테리어 디자인 (0) | 2023.06.19 |
| 카페인테리어 리노베이션 디자인 (0) | 2023.06.17 |
| 좁은 10평대 아파트 인테리어 (0) | 2023.06.16 |
| 50평 아파트 리모델링 인테리어 (0) | 2023.06.12 |
댓글