20평대 좁은 아파트의 경우 수납이 문제인 경우가 많습니다. 생활에 필요한 생필품과 가구 등 다양한 물건을 수납할 공간이 여유롭지 못해 쌓아 두거나 버리는 상황을 많이 경험할 수 있습니다. 해당 사례는 좁은 집의 수납문제를 해결한 수납 인테리어로 수납공간과 각각의 공간을 적절하게 분할한 아이디어가 좋은 인테리어입니다.
20평대 좁은 집 수납 인테리어: 붙박이 아이디어
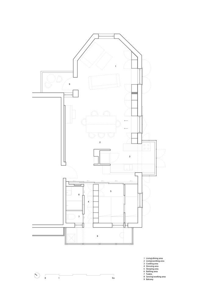
이스라엘에 위치한 아파트는 70㎡면적으로 대략 21평대입니다. 인테리어 설계로 벽의 수직적 요소를 이용하여 수직가구와 이에 따른 움직이는 칸막이 요소를 건축의 핵심 요소를 중심적으로 계획했습니다. 위 요소들은 개인적 또는 기능적으로 필요에 따라 개별의 영역으로 나눌 수 있으며 하나의 지속적인 동적 공간을 형성합니다. 즉, 공통 공간에서 공간을 분할함으로써 개인 공간을 만들 수 있습니다.

붙박이수납장 아이디어: 가구수납
일반적인 아파트를 살펴보면 수직적 요소로 벽과 문을 볼 수 있습니다. 하지만, 이 아파트는 벽과 문을 대신하여 붙박이 형식의 수납가구를 계획하여 수직적 요소의 기능을 대신하고 있는 중요한 역할을 하고 있습니다. 7m 길이의 수납벽은 식사, 업무, 가족 간의 이야기 및 놀이와 요리 등 다양한 기능을 제공해 줍니다.


평소 거실에서는 넓은 붙박이 벽으로 공통공간으로 사용하여 가족과 단란한 시간을 보내거나 손님을 맞이하는 공간으로 사용할 수 있습니다. 하지만, 붙박이 천장 사이에 작은 레일을 설치하여 공간의 기능과 필요에 따라 커튼을 열고 닫음으로써 개인공간이나 식사 및 생활공간으로 활용할 수 있습니다.
또한 붙박이 안에 책이나 TV 등 수납할 물건을 두어 공간을 깔끔하게 유지할 수 있어 심미성이 좋습니다.
붙박이수납장 아이디어: 공간분할
수직적 요소로 붙박이수납장을 활용할 경우 공간분할을 쉽게 이용할 수 있습니다. 벽장을 통해 주변의 화장실, 서랍장과 화장대로 쉽게 이동이 가능하며 공간에 방향성을 부여하여 사람의 동선을 유도할 수 있습니다.


붙박이수납장 벽은 열거나 닫거나 반쯤 열었을 때 공간을 다양하게 사용할 수 있는 설계로 상황에 따라 용도에 맞게 사용할 수 있습니다. 예를 들어 손님이 방문했을 때 왼편의 개인 침실공간은 문을 닫아 시야를 차단하여 해당 영역을 들어올 수 없게 할 수 있습니다.


1인가구가 점점 늘어나는 시대에 따라 원룸, 아파트 등 수납공간에 대한 문제가 자주 발생합니다. 그리하여 붙박이장, 가구가 많이 나타났지만 이는 저장에 대한 문제가 아닌 개인과 사람들과의 관계 등 다양한 측면에서 공간을 활용할 수 있어야 합니다.
기타 가구의 활용
붙박이 수납 벽으로 인해 물건의 수납과 보관에 대한 걱정은 덜어냈습니다. 하지만, 수납 및 보관의 기능 외에도 하부 공간을 활용하여 데스크 및 테이블 등의 기능을 추가하여 사용할 수 있습니다.
해당 사례는 붙박이 벽의 한 부분을 컴퓨터 데스크로 설계하여 거실에서 업무를 보고 있음을 확인할 수 있습니다.

좁은 집에서 사용하기 좋은 가구는 모듈화 된 가구 혹은 접이식 가구의 사용도 좋습니다. 해당 사례는 평소 사용할 때는 2인이 사용할 수 있는 크기의 식탁 테이블을 이용하나, 손님이 방문할 때는 4인~6인까지 사용가능 한 크기의 접이식 테이블을 두어 상황과 필요에 따라 알맞게 사용할 수 있는 가구를 두었습니다.


이상으로 20평대 좁은 아파트의 수납 인테리어에 대해서 살펴보았습니다. 원룸, 좁은 방, 좁은 아파트 등 수납공간이 부족한 공간은 붙박이벽뿐만 아니라 가구까지 공간을 최대한 활용할 수 있는 가구를 사용해야 합니다.
리모델링 시공을 하실 예정이라면 해당 사례처럼 붙박이 수납벽을 활용하여 수납 및 보관과 공간 분할의 역할까지 다기능적으로 사용하시는 것도 좋은 방법입니다.
출처:ArchDaily
'닮고싶은 인테리어 디자인' 카테고리의 다른 글
| 차분한 침실 인테리어 미니멀리즘 스타일 (0) | 2023.06.23 |
|---|---|
| 1인가구를 위한 아늑한 아파트 인테리어 (0) | 2023.06.21 |
| 30평대 아파트 인테리어 디자인 (0) | 2023.06.19 |
| 카페 리모델링 인테리어 (0) | 2023.06.18 |
| 카페인테리어 리노베이션 디자인 (0) | 2023.06.17 |
댓글