이 리모델링의 목표는 가족이 손님을 맞이하는 동시에 프라이버시를 제공할 수 있는 집을 만드는 것입니다. 10대 딸을 둔 부부는 차분하면서도 아늑한 우아함을 지닌 집을 원했습니다. 230㎡ 규모의 아파트는 스톡홀름 중심부에 위치한 20세기 초 건물 두 개의 작은 유닛을 합친 것입니다.
60평 아파트 리모델링 디자인

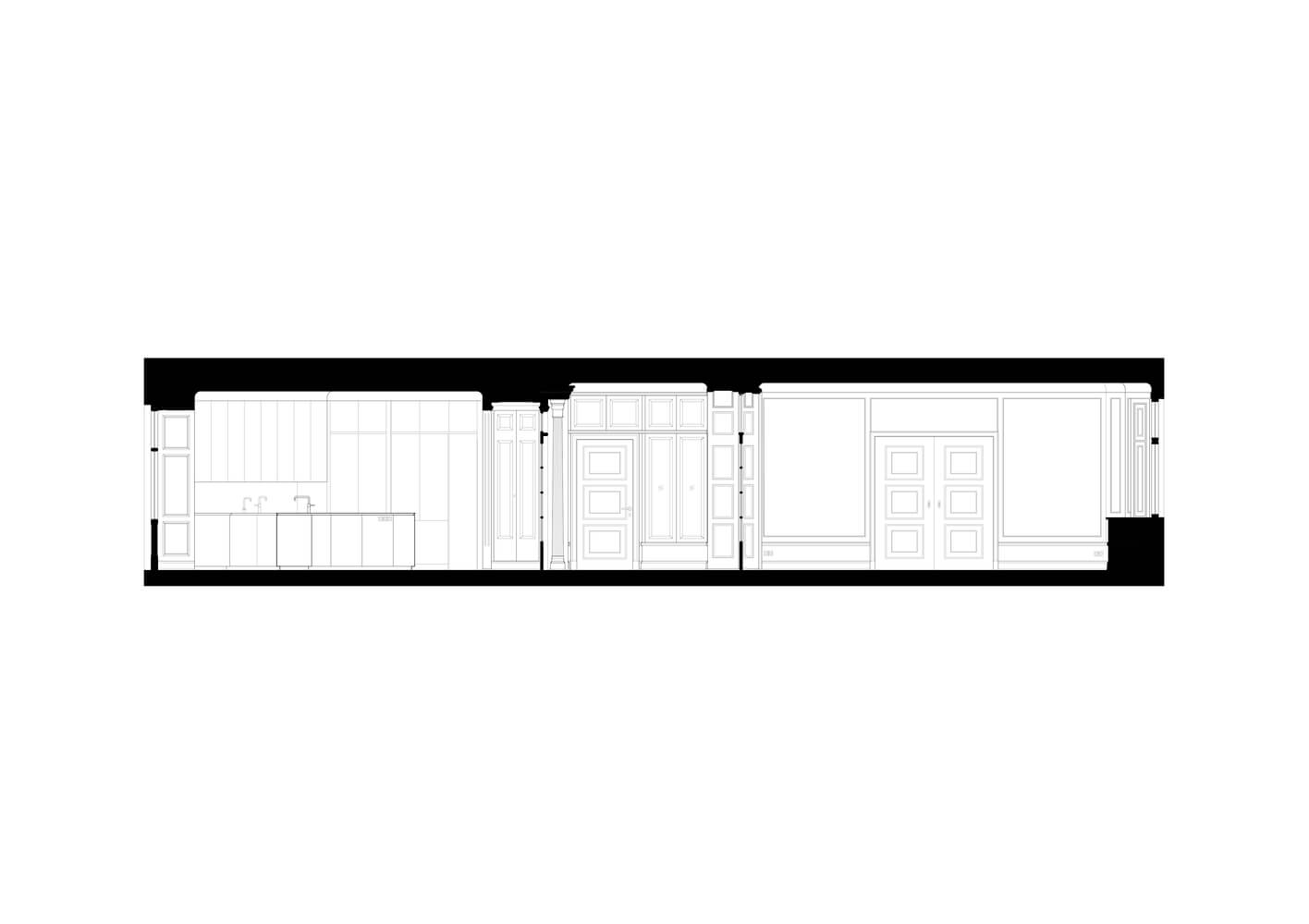
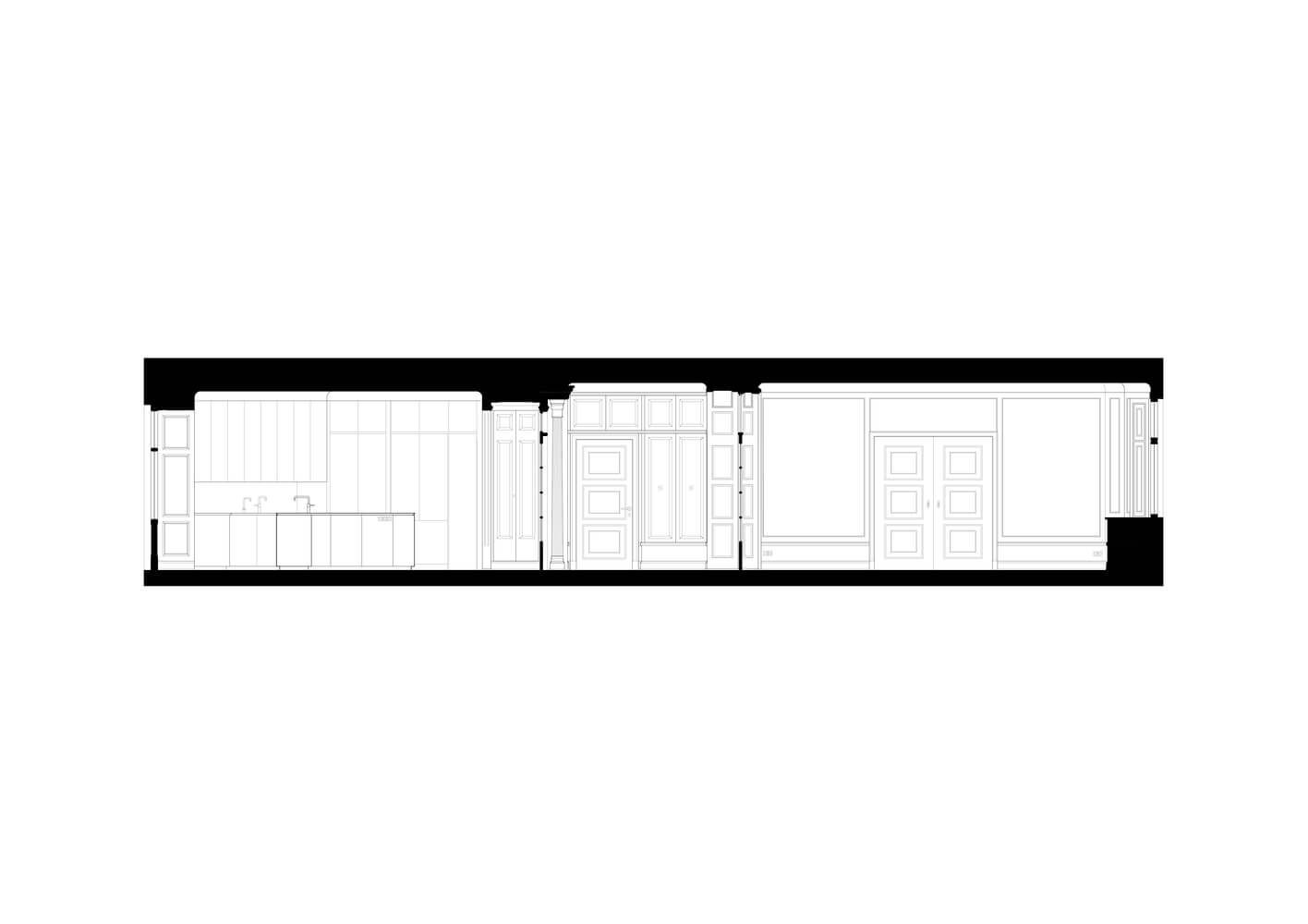
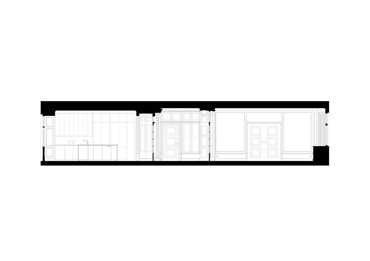
주방을 중앙 위치로 옮겨 주방, 거실, 다이닝룸 사이에 접근이 가능하도록 했습니다.
중앙에 위치한 내부 복도를 통해 거실과 다이닝룸으로 출입할 수 있으며, 주방과 다이닝룸은 별도로 연결되어 있어 케이터링에 적합합니다. 개인 공간은 아파트 반대편 끝에 있는 코어 외부에 있습니다.

패널로 마감된 숨겨진 문 뒤에는 옷장이 있는 곡선형 복도가 터널처럼 역할을 하면서 마스터 침실로 이어지며 어머니의 넉넉한 대형 옷장과 욕실로 이어집니다. 욕실 벽 중 2개는 곡선형으로 되어 있으며 슬라이딩 도어가 내장되어 있어 좁은 공간을 최대한 활용할 수 있습니다. 10대 딸은 침실, 거실, 욕실, 대형 옷장을 갖춘 별도의 구역을 갖고 있습니다.




인테리어는 소박하고 편안한 분위기를 지향합니다. 고정 가구는 아파트에 맞게 맞춤 제작되었으며 재료 선택은 인근 콜모르덴(Kolmården)에서 가져온 참나무와 녹색 대리석으로 이루어진 집의 원래 팔레트를 보완합니다.
내부 복도의 캐비닛은 내부의 원래 표현과 유사하고 나머지 목공품은 현대적인 디자인 언어를 채택하여 오래된 것과 새로운 것 사이의 긴장감을 조성합니다.

이 프로젝트에는 고정 가구 외에도 맞춤 제작 가구, 카펫, 커튼과 같은 느슨한 가구도 포함되었습니다. 벽과 천장은 다양한 회색 음영으로 칠해져 다채로운 추가 요소에 차분한 배경을 제공합니다.













from archdaily
'닮고싶은 인테리어 디자인' 카테고리의 다른 글
| 아이있는 집 서재형 거실 리모델링 인테리어 (0) | 2024.02.10 |
|---|---|
| 자동차차고에서 미니멀 주택으로 리모델링 인테리어 (0) | 2024.02.09 |
| 50평대 아파트 리모델링, 오픈형 철제 책장 거실 디자인 (0) | 2024.02.04 |
| 삼각지붕이 매력적인 아파트 리모델링 화이트 원목 인테리어 (0) | 2024.02.03 |
| 힐링하기 좋은 세컨하우스, 우드 인테리어로 아늑한 디자인 (0) | 2024.01.28 |
댓글