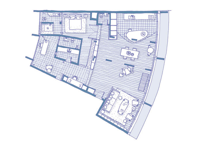
우리는 상파울루 중심부에 위치한 175m² 규모의 아파트, 특히 1966년 오스카 니마이어가 설계한 코판 빌딩의 리노베이션을 의뢰받았습니다. 젊은 여성과 그녀의 아들이 의뢰한 이 프로젝트의 주된 요청은 도시 스카이라인의 시각적 가능성을 향상하는 것이었습니다.

건물의 상부 구조를 평가한 후 콘크리트 브리지로 보호되는 유리 파사드에 인접한 공간의 용도를 변경하고 칸막이를 제거할 것을 제안했습니다. 유리 파사드 한쪽 끝에 있던 침실은 주방으로 탈바꿈했습니다. 조리대와 아일랜드는 타우아리 목재와 스피릿 산토 석재 조리대로 만들어졌습니다. 섬의 석재 조리대는 콘크리트 기둥을 감싸는 유기적인 디자인으로 사교 공간 사이의 경계를 모호하게 만듭니다.


아파트의 중심 축의 일부를 차지했던 침실은 식당으로 대체되었습니다. 유리 외관의 다른 쪽 끝에는 거실과 얇은 금속판으로 만든 서재가 있습니다. 레이아웃은 19 층에서 보기를 극대화하도록 설계되었습니다. 이 높이에서는 콘크리트 벽돌 사이로 자동차나 인도가 보이지 않고 다양한 시대의 건물과 건물 높이 위로 솟아오른 칸타레이라 산맥만 보입니다.




개인 공간은 건물의 코보고 정면을 향하고 있습니다. 이러한 용도 변경을 강조하기 위해 바닥을 18cm 높이고 외관과 같은 각도로 설계된 프리캐스트 콘크리트 계단이 특징입니다.





사무실은 기존 주방 공간을 차지하며, 높아진 바닥 위로 돌출되어 마치 공중에 떠 있는 것처럼 보입니다. 스튜디오는 아들을 위한 스위트룸으로도 사용할 수 있기 때문에 아파트의 다목적 공간입니다. 거주자의 침실과 욕실은 나무와 유리로 만든 창문으로 분리되어 있어 자연 채광과 교차 환기가 가능합니다. 욕조와 조리대는 프리캐스트 콘크리트로 만들어졌습니다.









from archdaily
DeepL
'닮고싶은 인테리어 디자인' 카테고리의 다른 글
| 아늑한 30평대 아파트 인테리어 원목 디자인 (0) | 2024.02.17 |
|---|---|
| 간결하고 따뜻한 일본 젠스타일 미니멀 인테리어 (0) | 2024.02.12 |
| 자동차차고에서 미니멀 주택으로 리모델링 인테리어 (0) | 2024.02.09 |
| 웜톤 컬러가 매력적인 60평 아파트 리모델링 인테리어 (0) | 2024.02.06 |
| 50평대 아파트 리모델링, 오픈형 철제 책장 거실 디자인 (0) | 2024.02.04 |
댓글