최근 상파울루에서는 작은 건물의 잠재력이 재발견되고 있습니다. 거리와 나무 캐노피와의 근접성은 주민과 도시 사이의 관계를 강화하여 그곳에 거주하는 사람들이 아파트보다 집처럼 느낄 수 있게 해 줍니다.
아파트 리모델링

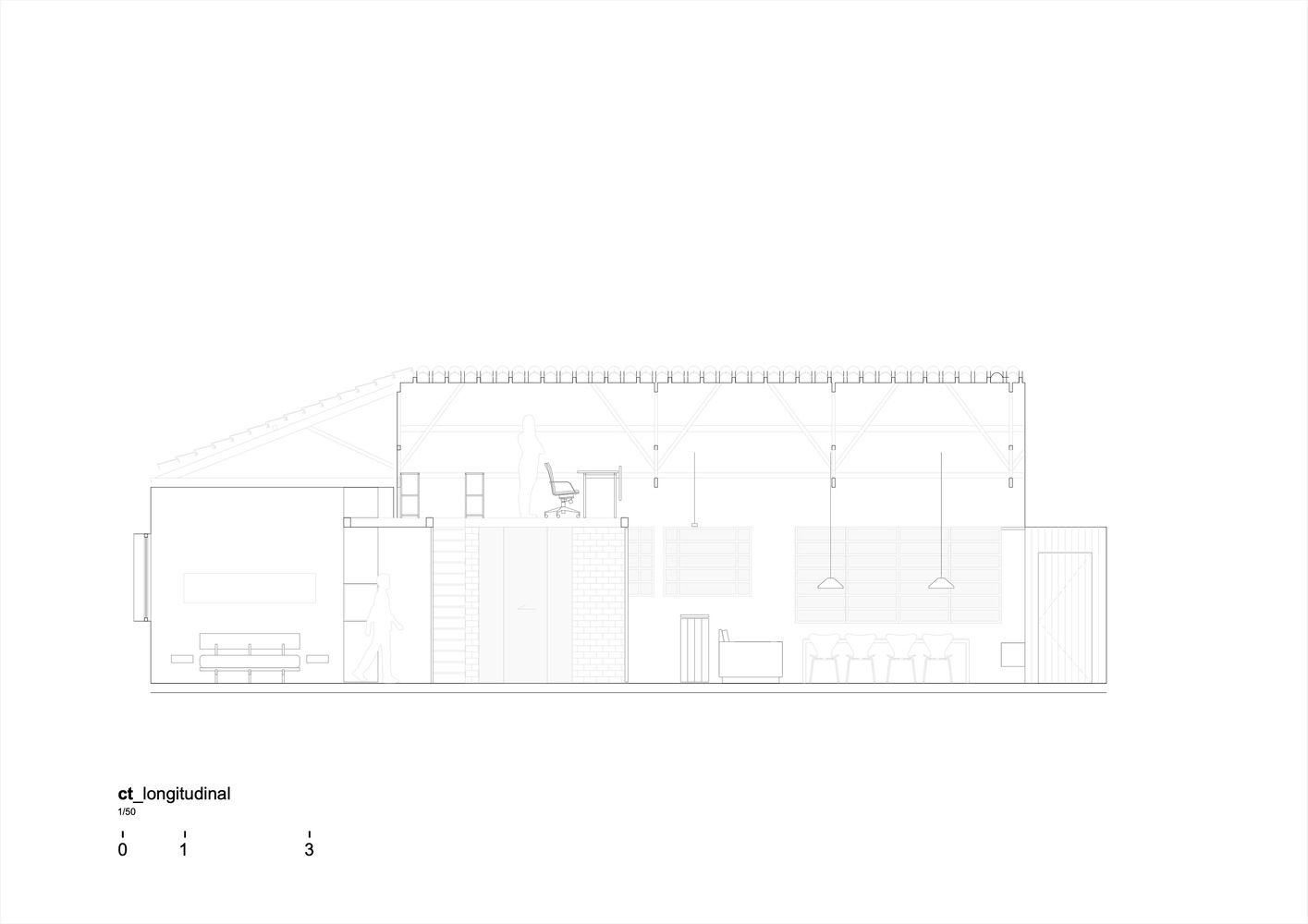
인테리어 디자인 프로젝트는 리노베이션 과정에서 예상치 못한 요소를 만나는 것이 일반적입니다. 크라비뉴스 빌딩(Cravinhos Building)의 지붕은 수작업만이 이룰 수 있는 장인정신 수준인 조각 조인트와 타이로드가 있는 4개의 물 트러스 목조 지붕을 형성하였습니다.




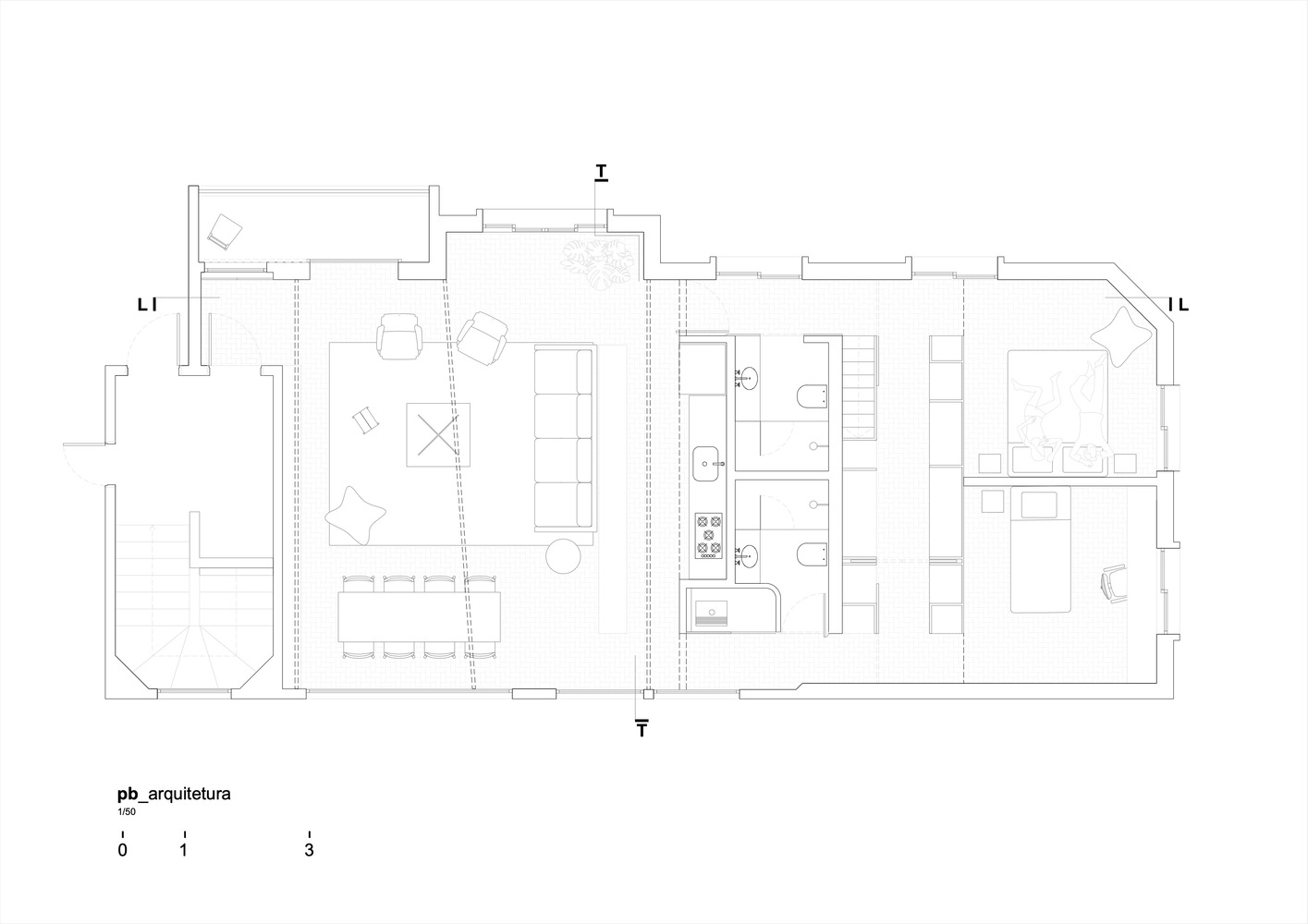
이 만남을 강조하기 위해 치장벽토를 철거하고 점토 벽돌의 일부를 재사용하여 주방, 욕실 2개, 세탁실 및 옷장을 포함하는 새로운 인프라 코어를 구축했습니다. 아파트의 둘레와 지붕에서 분리되어 자연광과 교차 통풍을 보장하기 위해 아파트 전체가 이 요소를 중심으로 회전하며 그 위에 금속 구조물도 배치되어 작업 공간을 위한 메자닌을 만듭니다.



















from archdaily
반응형
'닮고싶은 인테리어 디자인' 카테고리의 다른 글
| 웜톤 컬러가 매력적인 60평 아파트 리모델링 인테리어 (0) | 2024.02.06 |
|---|---|
| 50평대 아파트 리모델링, 오픈형 철제 책장 거실 디자인 (0) | 2024.02.04 |
| 힐링하기 좋은 세컨하우스, 우드 인테리어로 아늑한 디자인 (0) | 2024.01.28 |
| 헛간에서 미니멀 주택으로! 딥그린과 우드인테리어의 고급스러운 주택 리모델링 (0) | 2024.01.27 |
| 일본 건축요소가 적용된 70평 주택 리모델링 사례 (0) | 2024.01.22 |
댓글