브라질에 위치한 주택 리모델링 사례입니다. 상파울루 중심부에 위치한 곳으로 자연을 느낄 수 있는 집을 만드는 것이 목적입니다. 때문에 자연스러운 질감의 사용과 자연 채광 향상, 정원의 녹색과 대비되는 밝은 색상이 선택되어 탈바꿈되었습니다. 이 프로젝트는 일본 건축 요소인 가벼운 구성, 원자재 사용 및 고유한 자연스러운 질감, 조경 개념인 츠보니와와 샤케이 등이 적용된 사례입니다.
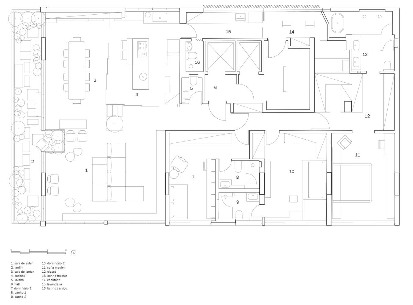
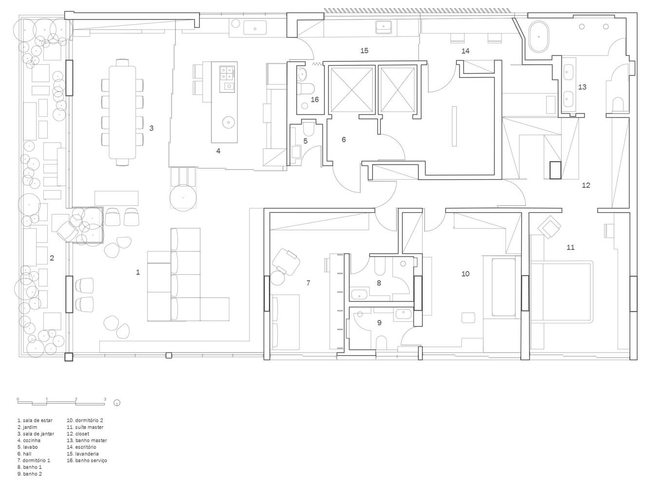
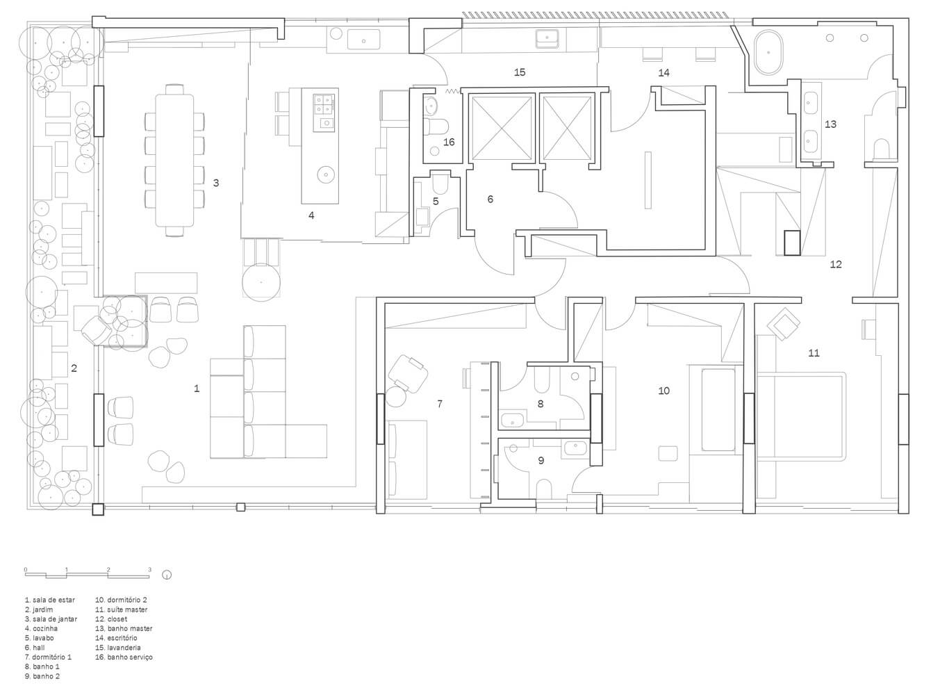
70평 아파트 리모델링

츠보니와는 8세기 이후 일본 건축의 공통 요소였지만 시간이 지나면서 현대화되었습니다. 이는 건물을 둘러싸고 있는 안뜰 정원으로 읽을 수 있으며, 이 경우 주택은 겨울 정원과 유사합니다. 이 요소는 거실, 식당, 주방 사이의 시각적 연결로서 주택의 사회적 영역에 적용되었습니다.
반면, 샤케이는 건축과 풍경을 구성하기 위해 배경 요소를 사용하는 프로젝트에서 “차용된 풍경”으로 번역될 수 있습니다. 발코니에서는 화려한 나무 꼭대기를 볼 수 있는데, 조경 프로젝트는 발코니 전체를 정원으로 만드는 것을 디자인 컨셉으로 삼았습니다. 이는 상파울루의 완전한 도시화 구역에 있는 주택 내부의 광대한 녹지로서 내부 요소와 외부 요소 사이의 배열을 가져옵니다.



리모델링을 통해 사회 공간은 주민들의 넓은 생활공간이 되었습니다. 주방, 식당, 거실, TV가 결합되어 주택의 정원과 직접 연결됩니다. 필요한 경우 빛의 통과는 허용하지만 방에 있는 사람들의 시야를 차단하는 회전식 유리문을 통해 부엌을 다른 환경과 격리할 수 있다는 점을 말하는 것이 중요합니다.


소셜 공간에는 Paricá의 천연 목재 가구 제조장과 조화를 이루는 미국산 참나무 바닥이 선택되었습니다. 외관의 원래 벽을 벗겨내고 흰색으로 칠해 주변 환경에 소박한 느낌을 더했습니다. 환경의 색상은 조경의 녹색과 장식의 작은 하이라이트로 제공됩니다.

주택의 전체 목공 디자인 외에도 사무실에서는 소파, 식탁 등 방에 있는 일부 가구도 디자인했습니다. 소파는 환경의 통합과 연결의 중심이 되도록 디자인했다고 할 수 있습니다. 그것은 다양한 기능을 가지고 있으며 휴식의 순간과 대화 및 사교의 순간 모두에 사용될 수 있습니다. 반면에 테이블은 일본 가구 제조에서 영감을 받아 피팅으로 만든 마운팅을 갖춘 가구 제조 구조를 가지고 있습니다. 심플하고 가벼운 디자인으로 다양한 환경에 적합합니다.
인테리어 및 도면, 스케치










from archdaily
'닮고싶은 인테리어 디자인' 카테고리의 다른 글
| 힐링하기 좋은 세컨하우스, 우드 인테리어로 아늑한 디자인 (0) | 2024.01.28 |
|---|---|
| 헛간에서 미니멀 주택으로! 딥그린과 우드인테리어의 고급스러운 주택 리모델링 (0) | 2024.01.27 |
| 원목의 심플함이 돋보이는 박공지붕 미니멀 주택 디자인 (0) | 2024.01.19 |
| 100평대 고급스러운 펜트하우스 아파트 인테리어 (0) | 2024.01.16 |
| 콘크리트 아치가 매력적인 60평대 아파트 리모델링 (0) | 2024.01.15 |
댓글