오늘 소개해드릴 고급 펜트하우스는 높은 층고를 가지고 있지만 노후화된 상태로 젊은 세대의 증가로 주택 소유자는 리모델링을 계획했습니다. 계획에 있어서 목표는 가족의 고유 요구를 충족시키는 것을 목표로 합니다.
펜트하우스 고급 아파트 인테리어

건축가는 인디애나 존스 영화에서 영감을 받아 가족 구성원 간의 장벽을 최소화하면서 공동 놀이터 등 어린이를 위한 다양한 놀이 공간을 갖춘 독특한 아파트를 만드는 것을 구상했습니다.


아이들은 강렬한 활동에 적극적이어서 아파트 내 야외 공간을 제공하는 매력적인 환경이 필요하다고 판단했습니다.
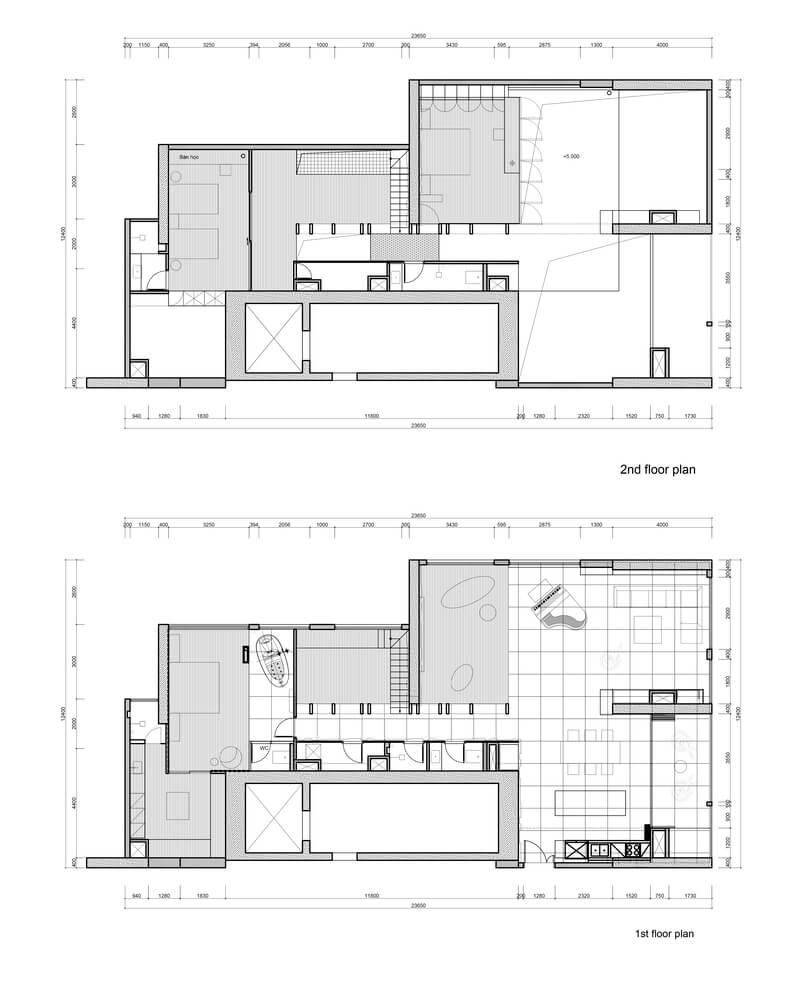
나무 기둥으로 된 시스템으로 지지되는 대형 철제 바닥을 올려 아이들을 위한 메자닌을 만들었습니다. 반면에 위생과 보관, 기능실과 같은 보조 시스템은 얇은 철제 바닥으로 연결된 돌담 안에 숨겼습니다. 재료 간의 대조는 동굴이나 숲과 같은 매력적인 모습을 만들어 냈으며, 나무 기둥은 이용자의 요구와 상상력에 따라 다양한 기능으로 변형하고 적응할 수 있는 다목적 공간을 형성합니다.



공용 공간이 확장되어 칸막이를 제거하여 원활하게 병합되고 주변의 탁 트인 전망을 제공합니다. 보조 기능은 매립형 캐비닛과 돌담 안에 숨겨진 방에 숨겨져서 공간 활용을 최적화했습니다. 스탠딩 샤워기, 변기, 욕조, 세탁실과 수납장 등 특정 기능을 개별듈로 구성하였으며 숨겨진 문은 사용 중 놀라움을 선사하기 위해 전략적으로 사용됩니다.
의도된 용도에 따라 공간이 원활하게 연결되거나 열릴 수 있도록 계획하여 펜트하우스는 창의성과 영감, 자유를 강조한 특징이 나타납니다.













from archdaily
'닮고싶은 인테리어 디자인' 카테고리의 다른 글
| 일본 건축요소가 적용된 70평 주택 리모델링 사례 (0) | 2024.01.22 |
|---|---|
| 원목의 심플함이 돋보이는 박공지붕 미니멀 주택 디자인 (0) | 2024.01.19 |
| 콘크리트 아치가 매력적인 60평대 아파트 리모델링 (0) | 2024.01.15 |
| 40평 아파트인테리어 신혼집 꾸미기에 좋은 따뜻한 디자인 (0) | 2024.01.14 |
| 그린 브라운 조합의 고급스러운 인테리어 리모델링 (0) | 2024.01.12 |
댓글