어린이 보육시설은 어린이의 안전과 건강을 최우선으로 고려하여 설계해야 합니다. 또한, 연령 및 발달 단계에 맞는 공간과 시설을 제공해야 합니다.
아이들에게 필요한 공간으로는 크게 3가지로 놀이, 수면, 식사 공간입니다. 해당 건축은 거리를 개방하여 앞에 넓게 펼쳐진 공원에서 자유롭게 뛰어놀 수 있으며 지역사회와 소통을 형성할 수 있는 특징이 있습니다.
자유롭게 뛰어놀 수 있는 아이를 위한 건축디자인

DAY CARE CENTER
Photographs:Studio Bauhaus
Manufacturers: Bouzou, Shibuya Seisakusho, Yamauchi Metal Supply
이 건축의 핵심 주제는 총 3가지로 구성되어 있습니다. 한눈에 보기 쉽게 정리를 해보자면 아래와 같습니다.
- 중증 심신 장애인 지원사업을 수행하는 법인이 실행한 사업
- 아동 발달 지원, 보육, 소아과 진료 및 상담 등을 한 번에 진행
- 누구나 공동체와 가깝게 느낄 수 있고 이용자, 가족 모두 편안하게 이용할 수 있는 포용적 환경 조성


해당 건축은 주택가에 위치해 있어서 조화를 위해 건물이 여러 부분으로 분리되어 있습니다. 중앙에 작은 마당이 위치해 있어 개방감이 있으며 자유롭게 뛰어놀 수 있다는 장점을 갖고 있습니다.
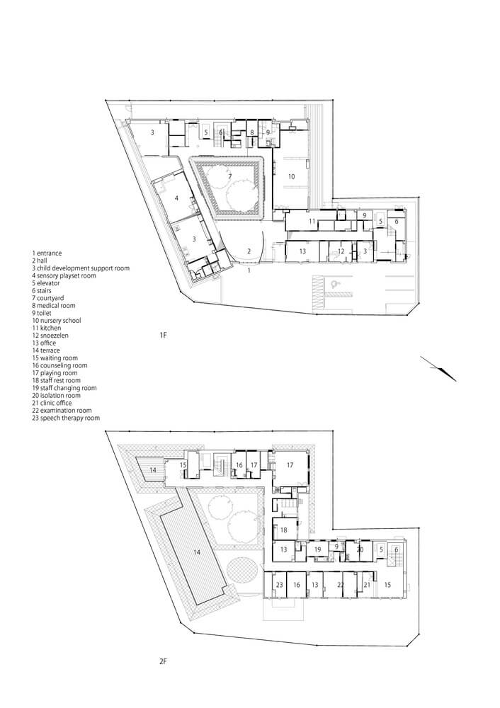
1층
마당을 사이에 두고 아동발달지원과 보육원이 위치해 있기 때문에 재활 및 돌봄에 집중할 수 있는 환경이 조성됩니다. 재활치료를 받는 아이들은 이 복도를 지나가며 자연스럽게 야외의 놀이터, 미끄럼틀, 놀이터 소굴에 접근하여 놀이를 즐길 수 있습니다.
놀이공간은 보육시설에 필요한 공간 중 하나로 활동을 통해 신체적, 정신적, 사회적으로 성장합니다.



실내에는 목재 바닥, 페인트 벽으로 구성되어 있으며 원목이 주는 편안하고 아늑한 분위기가 연출됩니다.

2층
2층은 건물 북쪽에 소아과가 위치해 있기 때문에 안정적이며 놀이방, 휴게실, 학부모 휴게실 등이 위치해 있습니다.





오랫동안 지역사회에 기여하는 건축이 되겠다는 목표로 지붕과 캐노피는 참나무의 도토리 외형에 영감을 받아 다이아몬드 디자인으로 구성하였습니다. 이는 교회 및 대성당에 사용되며 내구성이 높다는 장점을 갖고 있습니다.




This project was undertaken by a corporation that has been involved in supporting severely mentally and physically handicapped persons. The building holds child development support, nursery, pediatric medical care, and consultation all in one place. It aims to create an inclusive environment where everyone can feel close to the community and where not only the users but also their families can live comfortably.
On the ground floor, child development support and nursery are located across the courtyard, allowing them to focus on rehabilitation and nursery. Halls, slides, and playground den are set up facing a circular corridor so that children receiving rehabilitation and children in the nursery can meet naturally as they move and play.
On the second floor, the pediatric clinic is located on the north side of the building, where the environment is more stable, and playrooms, resting rooms, and respite rooms for parents surround a courtyard.
출처: Archdaily
'실내 건축 디자인 참고 자료 > 건축' 카테고리의 다른 글
| 자연과 지속가능한 주택 건축 디자인 Patio House (0) | 2023.09.03 |
|---|---|
| 주택 미니멀 인테리어 리모델링 Z House (0) | 2023.08.29 |
| 학교 리노베이션 건축 디자인 Etapa Vila Mascote School (0) | 2023.08.14 |
| 유연한 곡선 주택 디자인 curved line residence landscape (0) | 2023.08.07 |
| 산업건물 파사드 디자인 Telefónica Móviles Building (0) | 2023.08.06 |
댓글