스페인에 위치한 건물은 다국적 통신 회사의 건물로 산업에서 제조된 구성 요소를 조립하여 만든 대형 컨테이너로 설계되었습니다. 때문에 시공이 빠르고 저렴하다는 장점이 있으며 내부적으로는 외부 공기를 활성화하고 필터링함으로써 편안한 실내를 조성합니다. 뿐만 아니라 주변 환경과 조화가 잘 어우러지는 특징을 갖고 있습니다.

해당 건물은 건축과 기계의 이분법을 깨려고 노력하면서 환경 및 에너지 부하를 프로젝트의 결정적인 충동으로 보지 않는 건물입니다.
업계가 제조한 부품을 조립하여 만든 대형 컨테이너로 구상되었으며 베어링 구조를 띄고 있습니다. 이는 3차원 코어와 프레임을 개방하여 긴 스팬 슬래브를 지지하는 구조입니다.
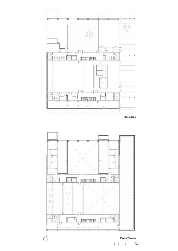
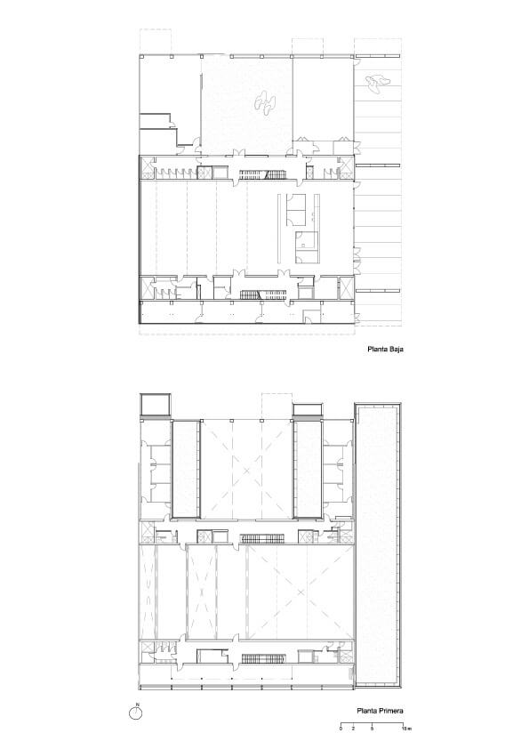
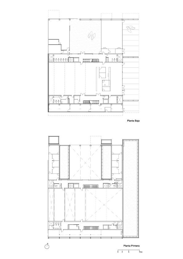
건물 영역 구분: 중앙, 남쪽, 북쪽
- 중앙 구역
중앙은 서비스 서비스 운용자들이 업무를 보는 공간입니다. 지붕의 기울기가 다양하며 층, 메커니즘으로 공간을 정의하는 기후 아트리움으로 작동됩니다. 또한 계절에 따라 인접한 영역의 공기를 끌어들여 에너지 흡수를 최적화함과 동시에 건물 전체 공기를 고르게 분배시킵니다.
- 남쪽, 북쪽 구역
남쪽은 휴식 공간이 있으며 필요에 따라 열을 생성하고 피난을 지원하는 대규모 녹색하우스로 기능합니다. 북쪽 구역은 관리사무실이 위치해 있으며 여름 동안 덥고 건조한 공기가 교체하기 때문에 냉각 기능이 있는 공간이 있습니다. 이 공간은 정원이 있어 열 조절의 기능이 가능하며 다른 영역에 신선함을 제공합니다.



Architects: Pich-Aguilera Architects
Structures: BD, Consultors
Direction: Manuel Santolaya, Juan Francisco Serrano
Technical Architect: Vicente Erguido. Ingeniero PGI Grup
Team: Felipe Pich-Aguilera, Teresa Batlle
City: Sant Joan de les Abadesses
Country: Spain














This is a building that considers the environmental and energy loads not as a decisive impulse of the project, trying to break the traditional dichotomy between architecture and machine.
출처: Archdaily
'실내 건축 디자인 참고 자료 > 건축' 카테고리의 다른 글
| 자연과 지속가능한 주택 건축 디자인 Patio House (0) | 2023.09.03 |
|---|---|
| 주택 미니멀 인테리어 리모델링 Z House (0) | 2023.08.29 |
| 학교 리노베이션 건축 디자인 Etapa Vila Mascote School (0) | 2023.08.14 |
| 어린이를 위한 보육시설 건축 디자인 SLP Center Arc (0) | 2023.08.13 |
| 유연한 곡선 주택 디자인 curved line residence landscape (0) | 2023.08.07 |
댓글