넓은 초원을 내려다보고 있는 개인 주택 디자인입니다. 풍경과 긴밀한 관계를 맺을 수 있도록 설계되었으며 개념적 구성과 야외와의 연결을 촉진하는 관점을 통합합니다.
단독주택 미니멀 디자인 인테리어

로드아이일랜드주 사우스 킹스타운에 위치한 개인주택으로 집의 풍경과 긴밀한 관계를 맺도록 설계되었습니다. 건축학적 매스와 관절화는 개념적으로 구성을 현장으로 확장하고 야외와의 참여를 촉진합니다. 주택의 지붕은 박공 볼륨으로 구성되며 2층으로 구성되어 있습니다.


확장된 남쪽 파사드는 의도적인 수평 및 수직 노출이 있는 박공과 벽으로 정의된 입구를 만듭니다. 박공은 내부 입구 통로 위에 캔틸레버식으로 설치되어 있으며 조경 벽 위에 수평으로 정렬되어 벽의 수직 슬릿과 교차하는 수평 간격을 만듭니다.
건축 요소의 레이어링과 대조되는 박공 삼나무 처마 밑면의 따뜻함이 결합되어 집의 주축을 중심으로 한 남쪽 출입구 도착을 연상시킵니다. 계획의 동쪽 끝에 있는 차고 벽 확장은 끝 벽과 숲 가장자리 사이를 통과하여 자동차 입구에 대한 문턱을 형성합니다.



나무가 있는 산책로는 전체 구성을 하나로 연결합니다. 데크는 벽과 평행하며 디자인을 감싸 건축경험과 공통된 응집력 있는 관계를 형성합니다. 건축 외관의 검정 및 목재 색상은 대조적인 톤을 형성하여 시각적 관계를 강화합니다.


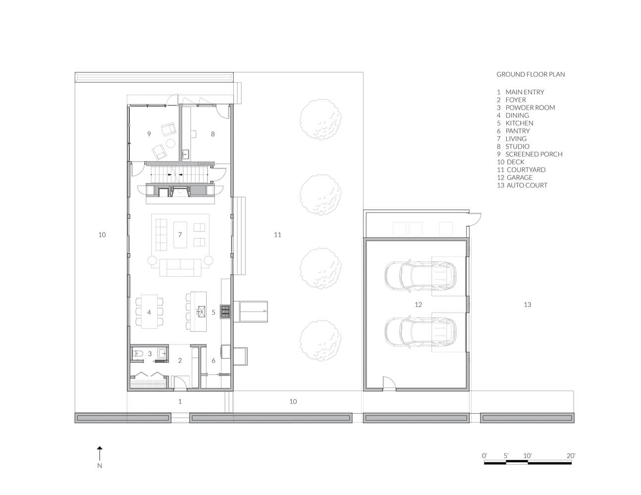
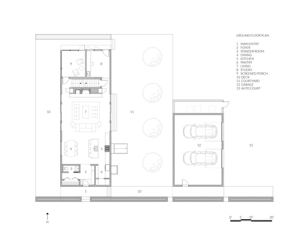
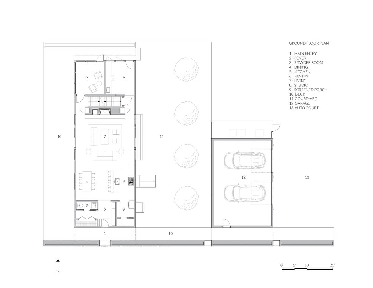
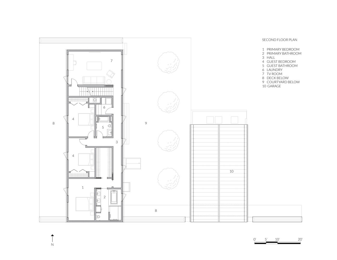
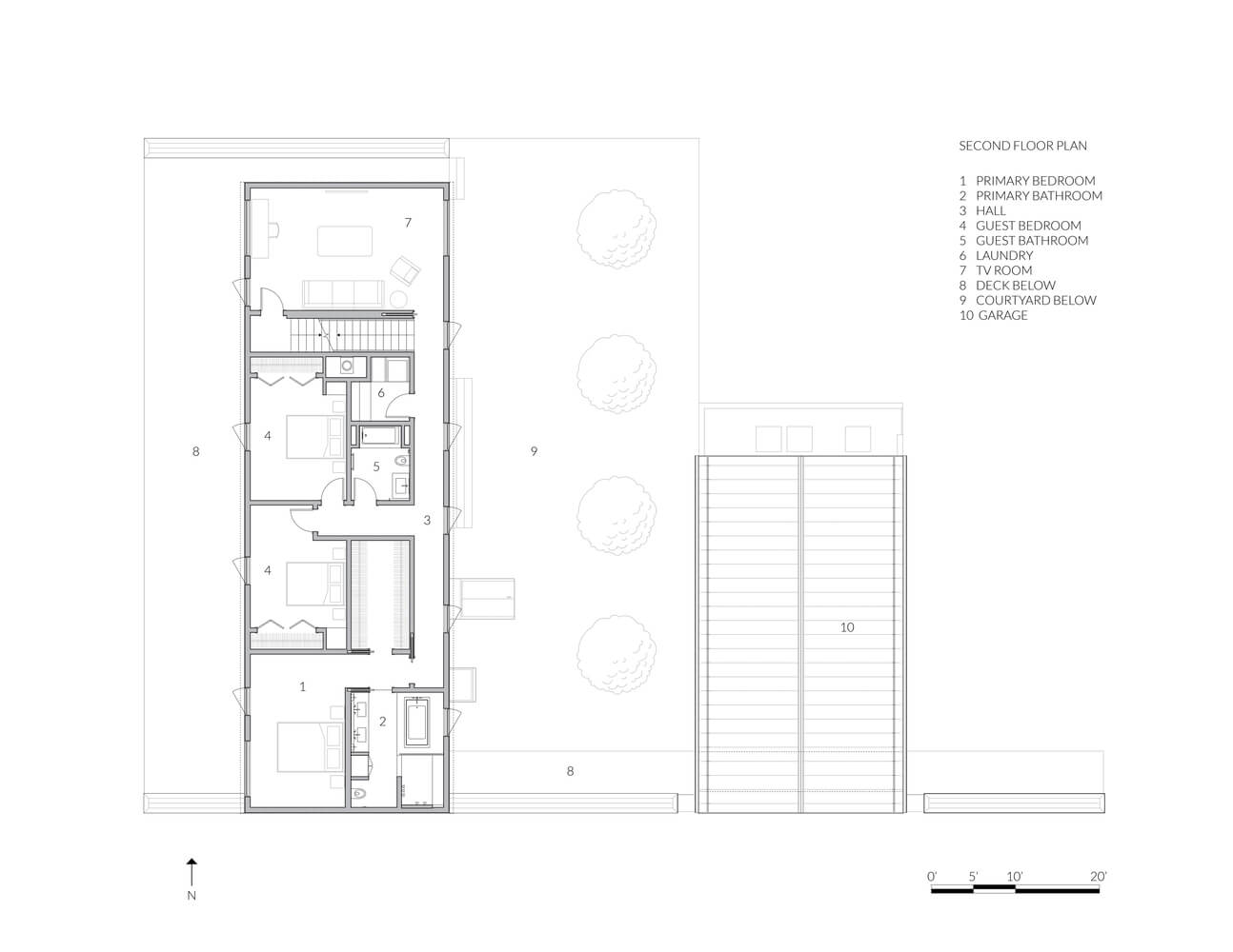
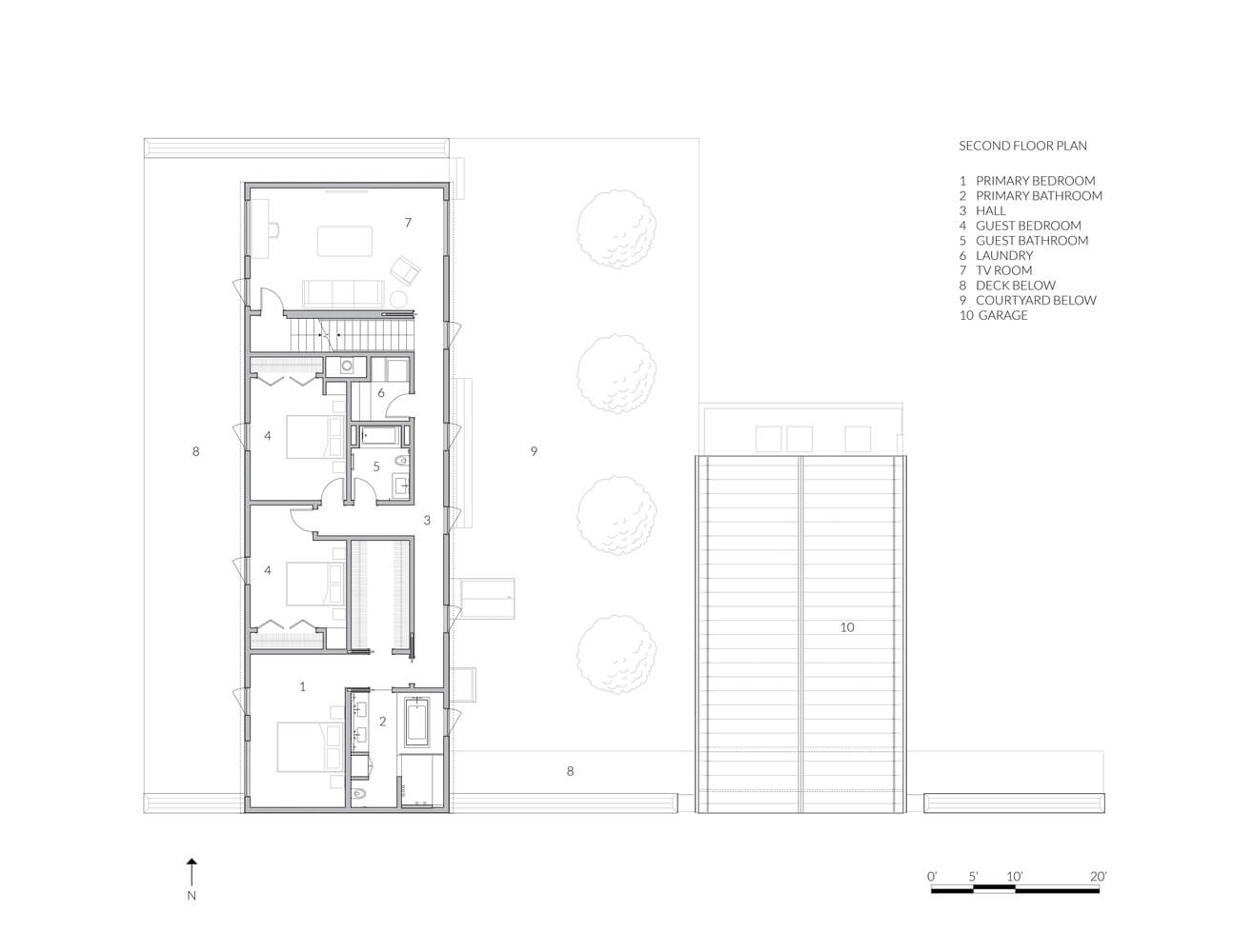
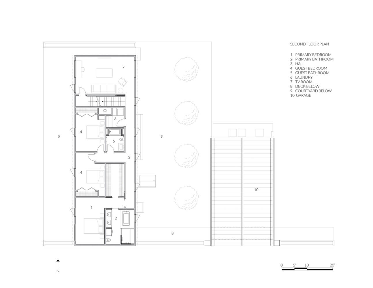
내부는 미니멀한 디자인을 특징으로 합니다. 탁 트인 들판이 내려다보이는 서양식 전망을 갖춘 공간으로 프로그램되어 있습니다. 1층에는 머드룸, 파우더룸, 다이닝, 주방, 거실, 아트 스튜디오, 베란다가 위치하며 2층에는 침실, 화장실, 세탁실, TV룸이 존재합니다. 지하층은 기계실 및 보관실의 유틸리티 공간으로 기능합니다.

지속 가능한 설계를 특징으로 폐쇄 셀 스프레이 폼 단열, 가변 공기량 전달 기능이 있는 천연가스보일러와 환기 시스템 등 다양한 기능이 포함됩니다. 이런 설계는 집의 에너지 효율성과 지속 가능성을 향상합니다.




도면




해당 단독주택 건축의 특징을 정리하자면 3가지로 나옵니다.
- 풍경과 밀접한 관계: 초원을 내려다보고 있으며 낙엽수, 월계수, 진달래가 있는 언덕 숲에 위치해 있습니다. 건축학적 매스와 관절화는 개념적으로 구성을 현장으로 확장하며 야외와의 참여를 촉진합니다.
- 미니멀디자인: 인테리어 마감 및 설비는 미니멀하고 진정성 있게 표현되었습니다.
- 지속 가능한 디자인: 폐쇄 셀 스프레이 폼 단열, 환기시스템 등의 기능으로 지속가능성과 효율성이 있습니다.
출처:archdaily
'실내 건축 디자인 참고 자료 > 건축' 카테고리의 다른 글
| 80평대 사무실 건축 리모델링 (0) | 2024.01.21 |
|---|---|
| 가족과 아이를 위한 스포츠센터 디자인 (0) | 2024.01.05 |
| 브랜드 팝업스토어 상업공간 건축 파사드 디자인 인테리어 (0) | 2023.09.12 |
| 주택 숙소 벽돌 건축: 기능성 단순성을 담은 주거 건축 (0) | 2023.09.04 |
| 자연과 지속가능한 주택 건축 디자인 Patio House (0) | 2023.09.03 |
댓글