중국에 위치한 브랜드 팝업스토어입니다. 상업 거리 입구와 교통 핵심지 지역에 있으며 부지 중앙에는 캐노피가 남아 있어 도시와의 관계와 팝업스토어의 '가벼움'과 브랜드의 '무거움'의 균형을 어떻게 맞출 것이 핵심 과제였습니다.
브랜드 팝업스토어 파사드 인테리어 디자인

MixC Popup Store
- category architecture
- date 2023
- area 170㎡
건축 전체 현장을 덮기 위해 강철 실린더를 사용하였습니다. 건물 정면을 캐노피의 기울어진 기둥 가장자리로 설정하였으며 단을 높여 부지의 경계가 확장되어 도시적인 개방 공간을 극대화시켰습니다.

정면은 바깥쪽으로 확장되며 도로를 향해 경사진 면과 교차되어 실린더의 내부가 드러나도록 디자인하였습니다. 실린더 내부는 제트기 모양의 원추형 금속 내벽이 설치되어 있으며 조명이 비쳐 강렬한 외관 파사드를 연출합니다. 반면에 건물 뒤쪽은 정원이 위치하여 차분하면서 위엄 있는 대조적인 분위기가 특징입니다.





볼록한 디자인의 특징은 도시공간의 체험적 측면으로 도시 개방 공간을 형성하여 팝업스토어의 피크시간대에 고객들이 야외에서 대기할 수 있도록 설계하였습니다. 이는 개방적인 프로세스로 손님을 포용하면서 도시의 중심지로 자리 잡게 되었습니다. 즉, 상업공간과 도시 사이의 장벽을 허물고 실내 공간을 위한 인터페이스를 형성하였습니다.



건축 전체가 철제, 원목으로 마감되어 팝업스토어의 무게와 브랜드 인지도를 극대화시켰습니다. '가벼운' 팝업 스토어를 '무게'있는 건축 양식으로 변화시킨 것입니다.

인테리어
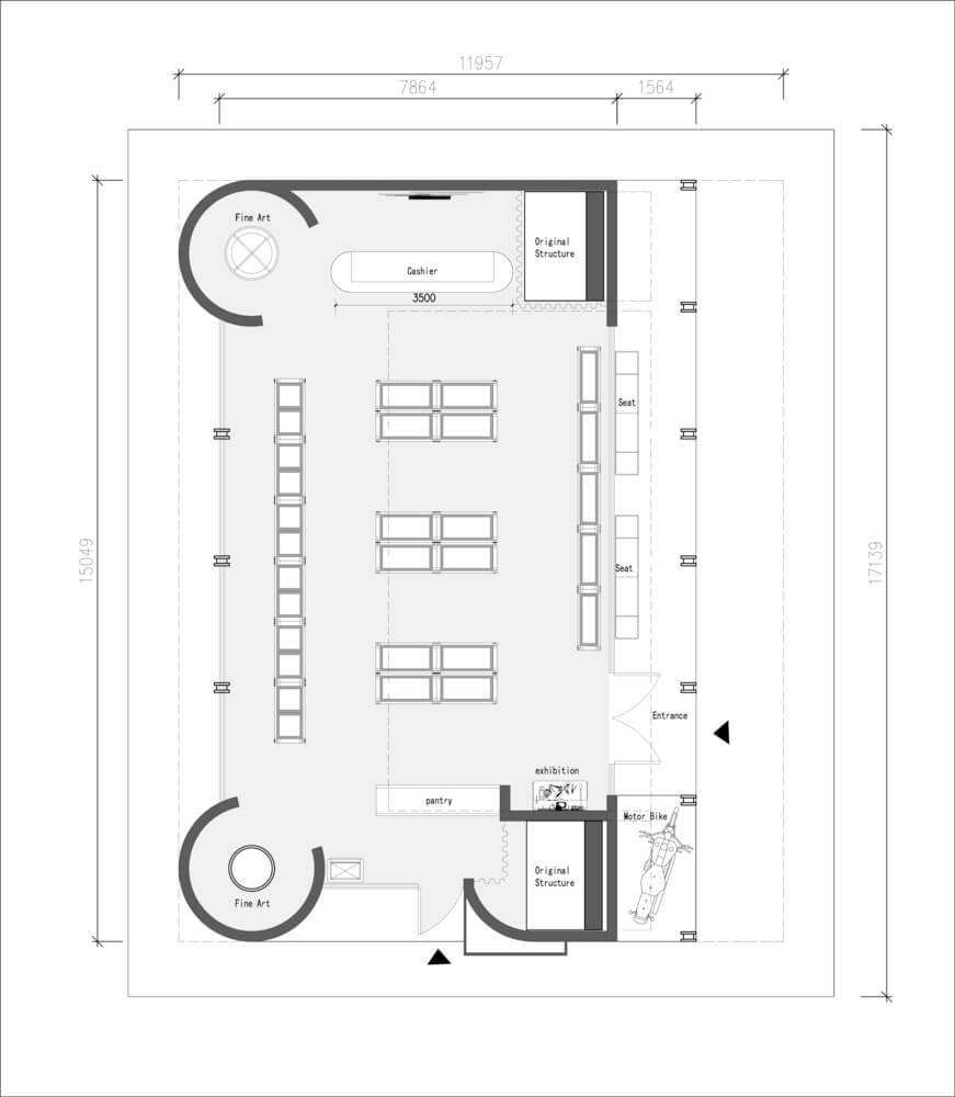
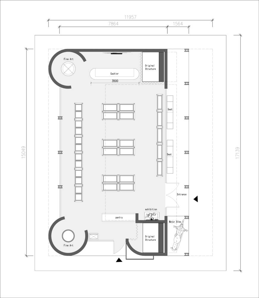
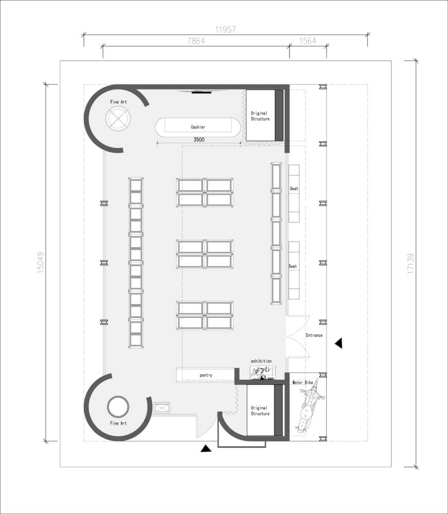
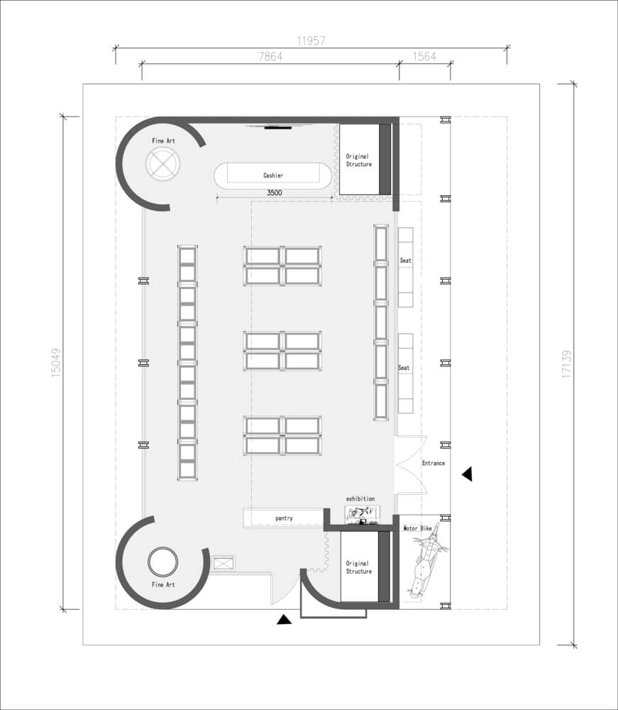
내부 인테리어로는 브랜드 제품의 가치를 극대화하기 위해 벽을 따라 전시 수납함이 있는 효율적인 배치를 선택하였습니다. 천장에는 물결모양의 PP디자인 요소가 공간 방향성을 부여하며 윤곽을 형성합니다. 이는 부드러운 이미지를 연출하여 건축 외부 파사드의 거친 느낌을 개선했습니다.














architecture
The project is located in Shenzhen MixC World, at the entrance of a commercial street and a core area of pedestrian traffic, with a retained canopy in the center of the site. The key challenges include how to manage the relationship between the new building and the city, how to balance the "lightness" of pop-up shops with the "heaviness" of the brand, and how to address the impact of the canopy on the architectural form.
We first use weathered steel cylinders to cover the entire site. The canopy over the site has a cantilevered trend facing the main street. We adapt to this trend by setting the main facade of the building back to the edge of the canopy's inclined columns. The ground is partially raised, extending to the site's boundary, maximizing urban open space. The upper volume of the main facade extends outward and is intersected by a sloping surface facing the main street, revealing the interior cavity of the cylinder. Inside the cavity, a conical metal inner wall is installed, resembling the shape of a jet, and paired with flame-like lighting to illuminate the front entrance space, creating a strong atmosphere. The slight lift of the cantilevered portion of the main facade ensures that pedestrians on the main street can see the expression of the facade, maximizing the presentation of the facade's tension. The back facade of the building faces a tranquil garden, and therefore, this facade is treated with a subdued and dignified approach.
The most significant feature of block-type commerce is the experiential aspect of urban space. We use a "step back to advance" approach to create ample urban open space, solving the problem of shading and shelter for outdoor queues during peak periods of pop-up shops. At the same time, we return the site to the city, embracing the public with an open attitude, becoming a hub for urban life. This "step back" breaks down the barrier between commercial space and urban space, creating a rich interface for indoor spaces.
The entire building is covered in weathered steel finish paint, maximizing the weight and recognition of the pop-up shop, transforming the "light" brand behavior into a "weighty" architectural statement. The building is completely open along the street, showcasing the indoor commercial ambiance to the public through glass curtain walls. American highway signs are placed on the top, surpassing the building's height limits to convey the brand message throughout the entire street.
interior
The interior layout adopts an efficient arrangement, with display cabinets along the walls to maximize product visibility. In the nodal areas of the circular circulation, external cylindrical elements are inserted into the interior, echoing the architectural language and housing art installations within the cavities. Overhead, wave-shaped ceiling elements made from recycled corrugated panels outline the spatial direction, enhancing the rough texture that corresponds with the exterior facade. Mechanical heart and floral art installations created by artists compensate for the delicacy and fluidity that resonates with the jewelry, adding an artistic atmosphere and visual focal points to the interior space.
'실내 건축 디자인 참고 자료 > 건축' 카테고리의 다른 글
| 가족과 아이를 위한 스포츠센터 디자인 (0) | 2024.01.05 |
|---|---|
| 넓은 마당있는 주택 디자인 집짓기 단독주택 인테리어 (0) | 2023.11.06 |
| 주택 숙소 벽돌 건축: 기능성 단순성을 담은 주거 건축 (0) | 2023.09.04 |
| 자연과 지속가능한 주택 건축 디자인 Patio House (0) | 2023.09.03 |
| 주택 미니멀 인테리어 리모델링 Z House (0) | 2023.08.29 |
댓글