브라질에 위치한 20평대 아파트 인테리어입니다. 과거 아파트를 개조하여 1인 가구의 생활방식과 이후의 거주자를 고려하여 공간을 재구성하였으며 모던한 홈스타일이 특징입니다.
20평 아파트 인테리어 리모델링

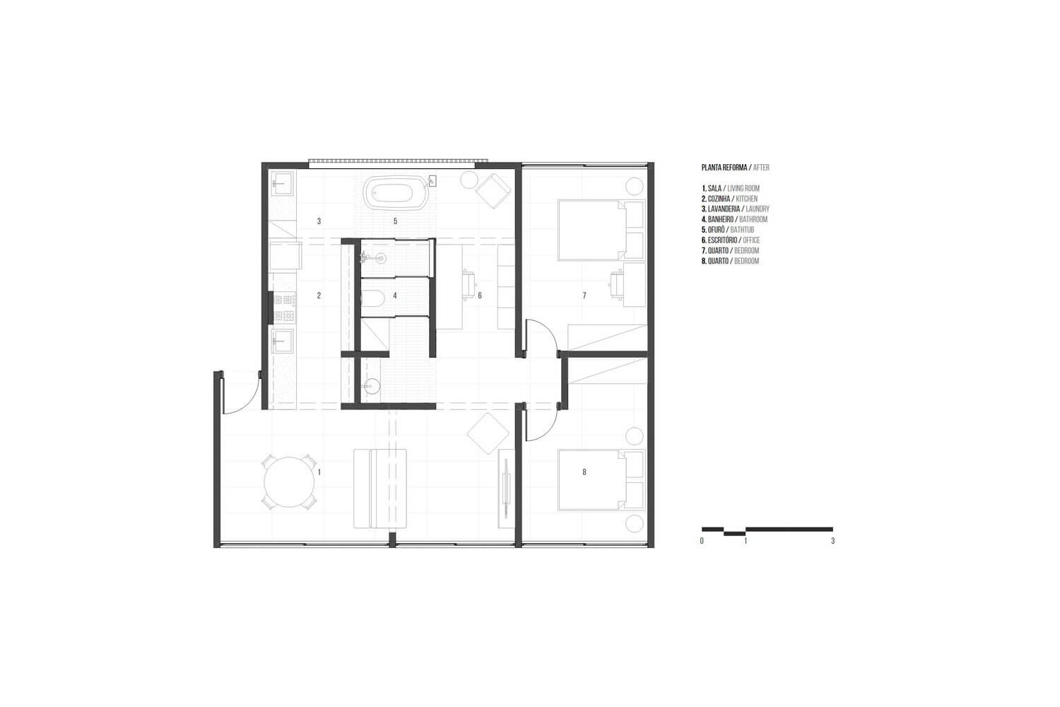
개조 전 아파트의 구성은 거실, 주방, 화장실, 침실 3개와 드레스룸으로 되어 있었습니다. 프로젝트 진행에 있어서 주방과 침실 중 하나를 거실에 통합하여 통풍이 잘 되고 조명이 밝은 공간을 만드는 것이 목표로 집주인은 혼자 거주하고 있으며 욕실은 하나만 있으면 충분한 상태였습니다.
따라서 침실을 유지할 것인지 욕실 하나만 제안할 지에 대해 많은 고민을 했습니다.


개조를 진행하는 데 있어서 사회적, 비용적 등 여러 측면을 고려해야 했습니다. 그 결과 이후 다른 거주자가 아파트에 입주할 경우를 대비하여 화장실을 크고 기능적으로 설계하며 주위의 공간은 현재 1인 가구인 집주인의 요구사항을 고려하기로 결정했습니다.

먼저 벽을 허물어 공간의 변화를 주었습니다.
개조 전 벽을 허물어 침실공간과 연결하여 넓게 사용할 수 있게 만들었습니다. 주방 쪽 벽면은 브라질리아의 모더니스트 건축물을 참조하여 테라코타 타일을 사용하여 포인트를 주었으며 이는 공간 곳곳에 사용했습니다.

주방의 경우 기존의 문을 제거하여 벽면으로 사용하였습니다. 길고 좁은 형태로 상부장을 두지 않고 간단한 선반을 설치하였으며 화이트 타일과 원목으로 깔끔하면서 넓어 보이게 디자인하였습니다. 조리대는 안도리냐 화강암으로 만들었으며 원목과 조화를 이루며 현대적이면서 고급스러운 분위기를 연출합니다.


과거 침실 공간의 벽을 허물어 길이를 길게 만들었으며 벽엔 창을 배치하여 답답함이 느껴지지 않도록 개방감을 주었습니다. 전체적으로 무채색 계열의 가구를 사용하여 공간을 최대한 넓어 보이도록 하였으며 패브릭 소재의 소파로 공간을 부드러워 보이도록 연출하였습니다.


거실 뒤쪽 옆공간엔 세면대를 따로 두어 욕실로부터 분리하였습니다. 이뿐만 아니라 변기와 샤워실을 독립적으로 사용할 수 있도록 디자인하여 이 아파트의 욕실은 섬처럼 작동합니다.


욕실 디자인의 경우 섬처럼 작동하는 것을 강조하기 위해 브라질리아의 모더니스트 건축물을 참조하여 테라코타 타일로 벽과 바닥을 마감재로 사용하였습니다.


욕조가 있는 공간에는 테라코타 타일, 원목 욕조, 큐블록으로 인해 유니크한 실내가 연출됩니다.


욕실의 뒤쪽에는 작은 작은 휴게공간이 있으며 홈 오피스 공간과 연계됩니다. 바닥의 마감재를 다르게 사용하여 시각적으로 공간을 분할해 놓은 것을 알 수 있습니다.

홈 오피스는 불필요한 가구를 배치하지 않고 테이블과 책을 보관할 수 있는 수납장으로만 단순하게 구성되어 있습니다. 거실과 마찬가지로 메인 컬러를 화이트로 사용하여 공간을 좁아 보이지 않게 디자인하였으며 테이블 옆면은 원목으로 포인트를 형성하였습니다.

한국과는 비슷한 듯 독특한 구조로 1인 가구를 고려한 인테리어입니다. 깔끔한 화이트와 테라코타 타일, 원목의 조화가 눈길을 끄는 스타일로 모던하면서 미니멀한 스타일이 특징입니다.
특히 욕실의 경우 외벽의 큐블록으로 인해 유입되는 자연광이 유니크한 실내를 연출해 주어 매력적인 아파트 인테리어를 완성합니다.
출처: archdaily
'닮고싶은 인테리어 디자인' 카테고리의 다른 글
| 모던클래식 30평 북유럽 인테리어 신혼집 랜선집들이 (3) | 2023.09.25 |
|---|---|
| 고급스러운 미니멀 카페 인테리어 상업시설 디자인 (0) | 2023.09.23 |
| 차분한 아파트인테리어 예쁜집 고급스러운 이미지연출하기 (0) | 2023.09.16 |
| 미니멀라이프를 즐길 수 있는 주택 우드인테리어 (0) | 2023.09.13 |
| 무용수를 위한 30평대 아파트 리모델링 인테리어 Apartment remodeling interior (0) | 2023.09.06 |
댓글