베트남 커피의 품질과 장인정신을 세계무대에 끌어올리기 위해 '꿈을 깨우다'라는 슬로건을 가진 카페 인테리어 사례입니다. 미니멀하고 우아한 디자인을 추구하며 근처 사이공 오페라 하우스의 건축과 라이브 공연에 대한 아이디어에 영감을 준 카페입니다.
오페라야 카페야? 우아하고 고급스러운 카페 디자인

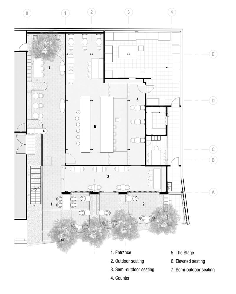
고객의 이야기와 지역적 맥락을 모두 수용하여 커피 제조의 예술성을 높이고 공연자로서 바리스타를 높이겠다는 비전으로 '공연 스테이지'를 중심으로 실내를 디자인했습니다. 전략적인 공간 계획으로 바를 무대로 이끌었습니다.
바리스타 공연자와 고객 사이의 다양한 상호작용을 원했기 때문에 다양한 눈높이 관점을 설계하였습니다.



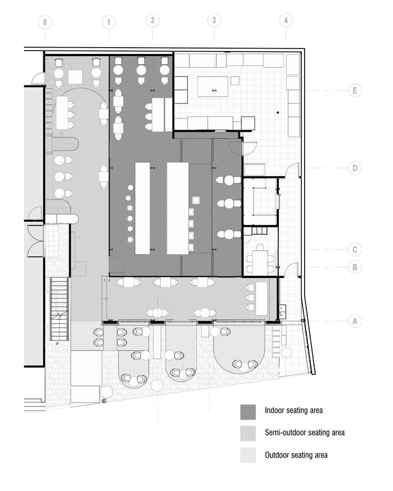
카페는 자신들의 커피 제조 과정을 대표하는 투명성이 있다고 믿으며 이런 정신은 우아하게 구현되었습니다. 프레임 없애 실내와 실외 간 시각적 연결을 실현하였으며 가구를 맞춤 제작하여 무대 스테이지 바의 무게 균형을 맞춰 가볍고 얇게 디자인하였습니다.


지속가능한 소재를 사용하였으며 자연광을 실내로 유입하여 뜨거운 공기를 효율적으로 배출할 수 있도록 태양광 굴뚝을 설계하여 인공조명의 필요성을 최소화시켰습니다.




조명 디자인은 공연 무대의 콘셉트를 따르고 있습니다.
스포트라이트는 중앙 바에 초점을 맞춘 반면, 주변 좌석에는 확산 벽 조명을 사용하여 관객들에게 부드러운 실내를 연출합니다.
4000K 조명으로 낮에는 커피 애호가들을 위한 시원한 휴양지를 제공하며 밤에는 따뜻하고 고급스러운 바 분위기를 연출합니다.





카페 외관 디자인의 경우 밝은 화이트 컬러 마감으로 마치 오페라 하우스 같은 이미지를 제공합니다.


출처: Archdaily
'닮고싶은 인테리어 디자인' 카테고리의 다른 글
| 아파트 리모델링 최소한만을 담은 미니멀 인테리어 (1) | 2023.09.26 |
|---|---|
| 모던클래식 30평 북유럽 인테리어 신혼집 랜선집들이 (3) | 2023.09.25 |
| 20평 인테리어 테라코타 타일을 이용한 모던한 홈스타일 연출 (0) | 2023.09.22 |
| 차분한 아파트인테리어 예쁜집 고급스러운 이미지연출하기 (0) | 2023.09.16 |
| 미니멀라이프를 즐길 수 있는 주택 우드인테리어 (0) | 2023.09.13 |
댓글