인도 뭄바이의 카터 로드에서 조금 떨어진 활기찬 동네에 자리한 이 오래된 집은 시간의 흐름과 끊임없이 변화하는 도시 경관을 보여주는 증거입니다. 이 과거의 유물은 주변 도시가 계속 변화하는 가운데 우뚝 솟은 고층 빌딩의 부상을 목격합니다.
힐링하기 좋은 웰니스 건축

수년에 걸쳐 이 건물은 원래의 구조와 자연스럽게 어우러지는 영구적인 증축을 맞이하면서 성장하고 적응해 왔습니다. 분홍색 팔로다석으로 만든 계단은 과거와 현재의 조화로운 병치를 시각적으로 보여주는 증거입니다. 부속된 주방과 화장실도 이야기의 일부가 되었습니다.


이 집은 도시의 혼돈 한가운데 있는 안식처인 웰니스 공간의 캔버스로 선택했을 때 소개받았습니다. 이 건물은 많은 복원이 필요했습니다. 역사, 목적, 재료가 어우러져 독특한 경험을 선사하는 '팔림프세스트'라는 개념이 탄생했습니다. 저희는 집 안팎에 건물을 지으면서 겹겹이 쌓는 작업을 계속할 기회를 잡았습니다.



이 공간은 번잡한 동네에서 고요함의 등불로 등장합니다. 입구에 작은 수역이 있고 양쪽이 조경으로 둘러싸인 돌길을 통해 들어섭니다. 자연의 질감이 공간을 감싸고 있어 방문객을 촉각과 감각으로 오아시스의 품에 안겨 줍니다. 웰니스 센터의 중심에는 전체 공간의 본질을 구현하는 시간의 파편인 폐허가 자리 잡고 있습니다.


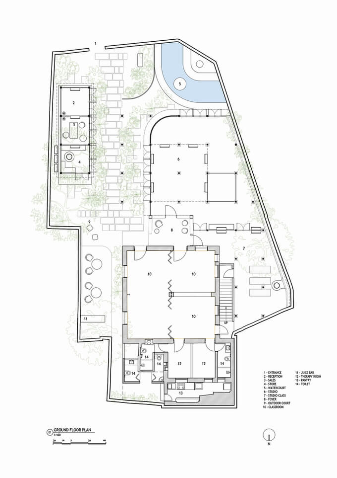
풍화된 벽돌 벽을 의식적으로 노출하여 교실을 감싸고 있습니다. 요가 스튜디오, 오두막, 개인 요가 교실, 상점, 주스 바 등 다양한 프로그램이 이 공간을 중심으로 자연스럽게 어우러져 펼쳐집니다. 요가 공간은 대나무 디테일과 황마 가리비 장식으로 이 집의 확장 부분을 차지하고 있습니다. 투명한 천장을 통해 부지를 감싸고 있는 오래된 나무들로 인해 시야가 방해받지 않고, 자연스러운 그늘이 드리워진 빛이 하루 종일 이 공간을 가득 채웁니다.






from archdaily, DepL
'실내 건축 디자인 참고 자료 > 건축' 카테고리의 다른 글
| 지역사회 발전을 통한 주유소 창고 건축디자인 (0) | 2024.02.05 |
|---|---|
| 체험 가능한 주방용품 오픈형 공장 건축 디자인 (0) | 2024.01.30 |
| 아이와 함께하는 시골집 디자인 건축 레이아웃 (0) | 2024.01.29 |
| 80평대 사무실 건축 리모델링 (0) | 2024.01.21 |
| 가족과 아이를 위한 스포츠센터 디자인 (0) | 2024.01.05 |
댓글