작은 공간에서 최상의 것을 끌어내는 방법은 무엇일까?라는 생각에서 디자인된 레스토랑 바입니다. 그 답으로 수학적 체계를 시뮬레이션하여 실내에 적용한 사례로 눈에 띄는 실내 디자인이 완성됩니다
레스토랑 바 인테리어

약 18평의 레스토랑 공간입니다. 제한된 공간의 사용을 극대화하는 방법으로 개념적으로나 시각적인 성장 차별화를 주는 것입니다. 성장 패턴은 무작위로 보일 때도 명확한 수학적 체계를 따릅니다.
이 시스템은 자연 발생을 리모델링하고 파라메트릭 소프트웨어를 사용하여 시뮬레이션된 알고리즘을 기반으로 합니다. 성장 진화에 대한 수학적 이해는 중앙의 조명설치뿐만 아니라 양쪽에도 사용되었습니다. 카운터 주변의 내부에도 비슷한 아이디어를 적용합니다.


1층 공용 공간은 지붕이 있는 야외 테라스, 외부로 열리는 정면 옆의 식사 공간, 사교적인 오픈 바의 세 구역으로 나누어져 있습니다. 바 뒤쪽에는 일광이 거의 없기 때문에 두 내부 구역 사이에 명확한 공간 분리가 만들어졌습니다.
'방 안의 방'은 사라진 자연의 특성을 독특한 분위기로 대체합니다. 크롬 처리된 강철 패널은 제조 과정에서 발생하는 그러데이션과 색상을 가지며 소재의 독특함을 더해줍니다. 벽 클래딩은 프로젝트의 유일한 비단색 요소로서 폭발적인 색상을 통해 뒷방을 수많은 공간 경험이 있는 장소로 만듭니다.

또한 공간, 전망 및 반사를 활용합니다. 거울 표면과 아티팩트가 설치되어 공간을 시각적으로 확장합니다. 다양한 각도, 반사 및 역반사는 관점, 경험 및 상호 작용의 끝없는 변화를 만들어냅니다.
스테인리스 카운터와 크로메이트 스틸 패널로 둘러싸인 상부 조명 설치의 조합이 디자인의 중심입니다. 반구형 조명 설치는 "오픈 바" 위에 배치되며 손님들은 전체 구체를 인식하므로 높이가 두 배인 방의 환상이 원활하게 작동합니다.

카운터는 공간에 세로로 배치되어 손님과 직원 사이의 경계를 없애줍니다. 맞춤 제작된 3D 프린팅 펜던트 조명 2개는 구와 성장 패턴의 언어를 모두 담고 있습니다. 현관으로 계단을 올라가면 손님은 또 다른 반원형 성장 패턴을 발견하게 되며, 거울로 된 벽 클래딩으로 보완되어 완전한 원을 만듭니다. 바에서 만들어지는 분위기로는 낮에는 환영하고 편안한 분위기, 밤에는 신비롭고 친밀한 분위기를 연출합니다.









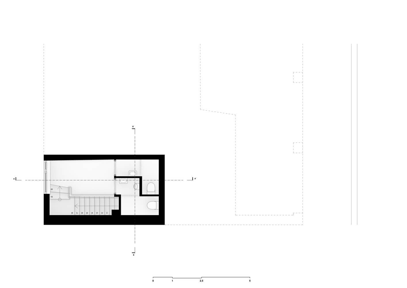
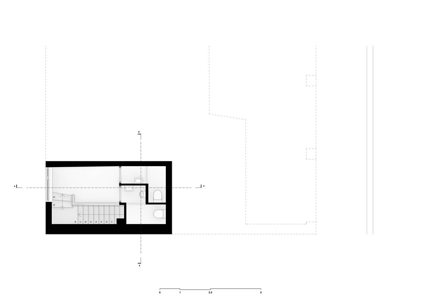
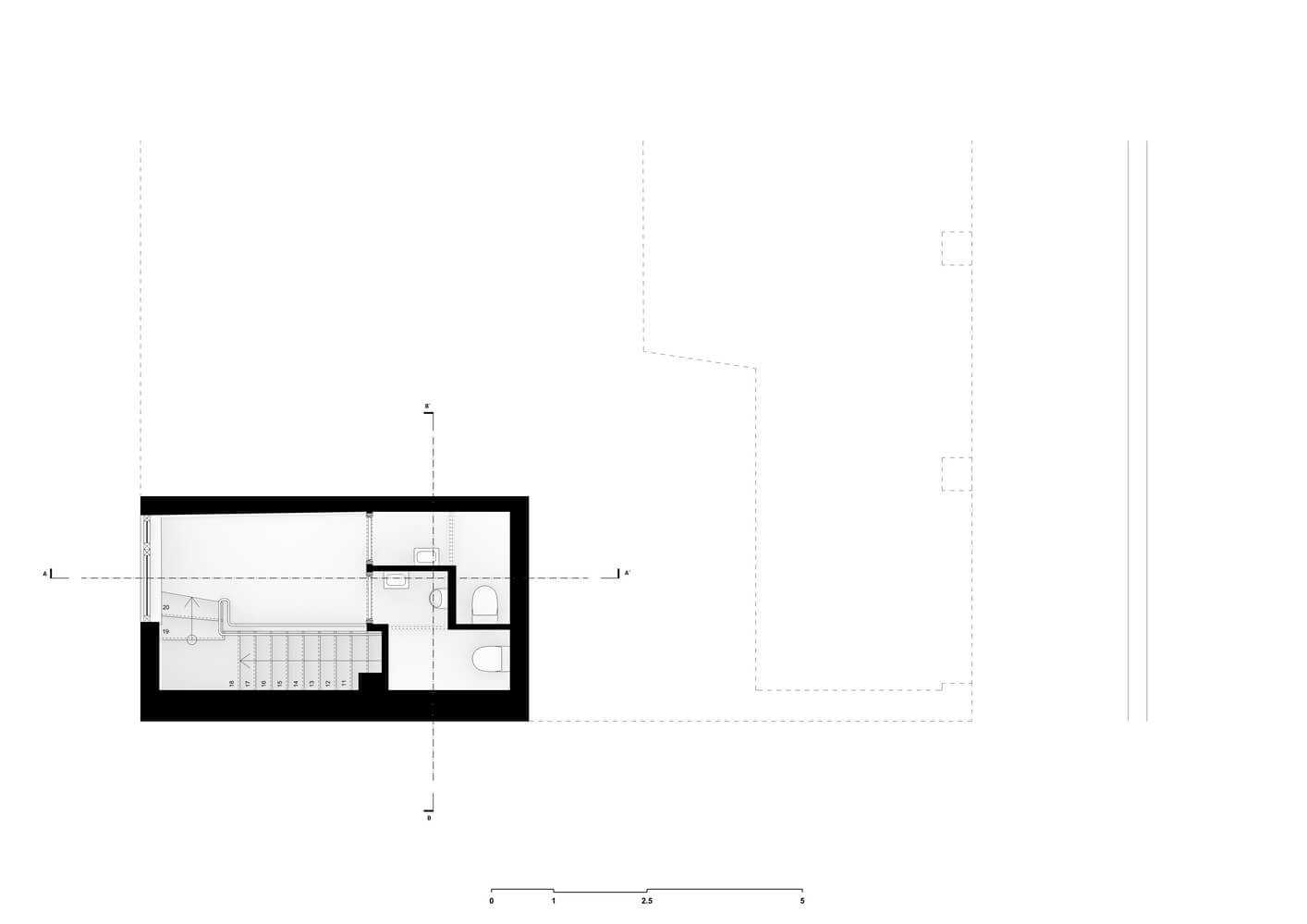
도면






from archdaily
'실내 건축 디자인 참고 자료 > 실내' 카테고리의 다른 글
| 혁신적인 아방가르드 스타일의 소매인테리어 엿보기 (0) | 2024.01.26 |
|---|---|
| 모던 미니멀한 깔끔한 전시회 디자인 (0) | 2024.01.13 |
| 마굿간의 재탄생, 아트리움을 품은 사무실 인테리어 (0) | 2024.01.01 |
| 이게 서점이라고? 맞춤형 시스템이있는 서점 인테리어 (0) | 2023.12.30 |
| 문화적 특징을 반영한 상업공간 인테리어 큐레이션 (0) | 2023.12.29 |
댓글