과거 마구간 건물이었던 사이트를 주변 환경을 고려하여 새로운 오피스 공간으로 탈바꿈한 사례입니다. 건물의 형태를 최대한 보존하면서도 내부를 변화시켜 새로운 성격이 부여되었습니다.
사무실 리모델링 인테리어

테헤란에 위치한 타비아트 다리 근처 공원에는 과거 마구간 건물이 있었습니다. 이곳을 코워킹 공간으로 재탄생시켜 매력적이고 흥미로운 사무실로 변화시키기 위해 대대적인 보수와 새 단장이 필요로 했습니다.
건물의 전체적인 형태와 외관을 유지하면서 내부 공간을 변형함으로써 독특한 정체성을 유지하고, 새로운 사회적 성격을 부여하는 것을 목표로 삼았습니다. 사이트가 공원으로 둘러싸여 있으며 도시 고속도로 근처에 위치한다는 점을 고려하여 직원들이 외부 환경과 단절감을 느끼지 않도록 창을 만들어 긍정적인 분위기를 내부로 유입하도록 결정하였습니다.

따라서 1층을 따라 원형 창을 만들어 직원들이 외부 환경과 끊임없이 연결되어 있도록 설계하였으며 채광창을 설치해 복합 단지 내 자연채광의 유입을 늘렸습니다.



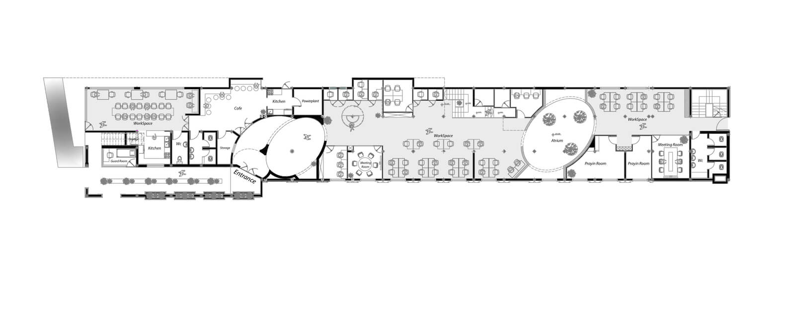
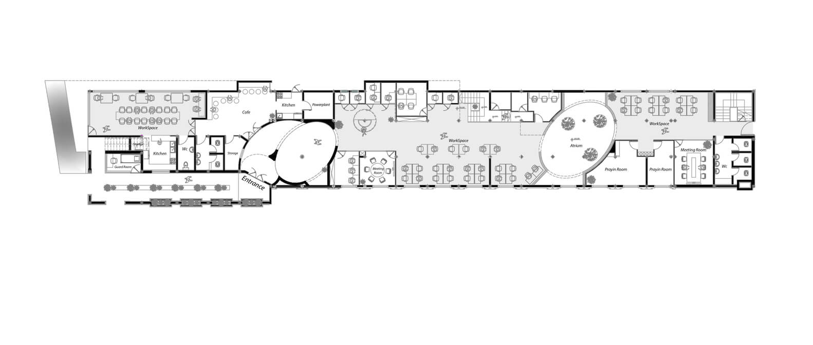
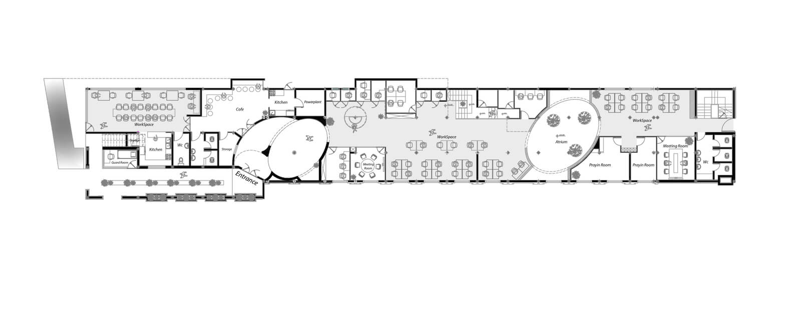
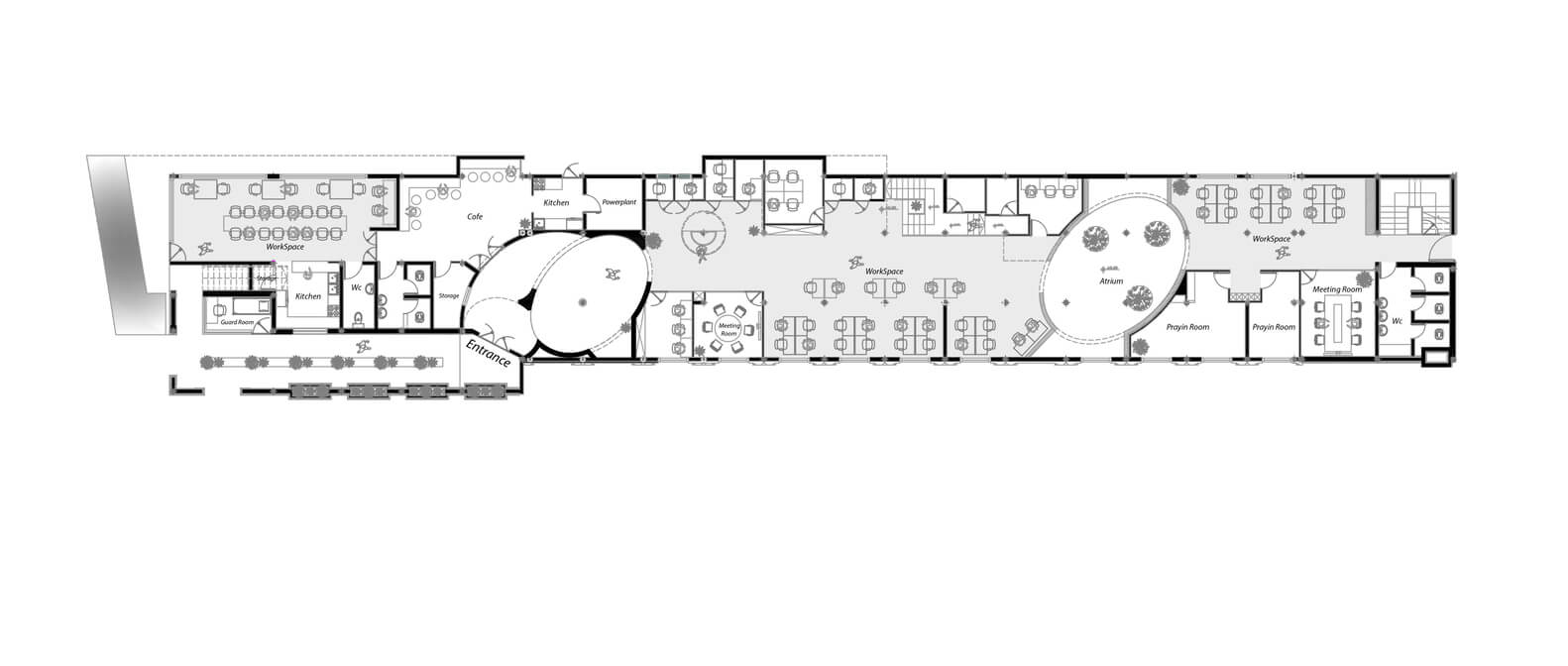
1층 길이가 상당히 길어 공간 분리를 도입하기 위해 2개의 타원형 공간을 형성하였습니다.
이는 길게 늘어난 모양이 시각적으로 공간을 지배하지 않도록 하기 위해서입니다. 이 타원형은 공간에 있어서 중요한 역할을 합니다. 하나는 입구 및 분할 공간의 기능, 다른 하나는 휴식 및 아트리움으로서 사용됩니다.


내부 안뜰이 모든 방향에서 적절한 경관을 확보하기 위해 투수성 벽을 설계하고 손으로 만든 콘크리트 블록을 사용해 시공했습니다. 약 2000개 콘크리트 블록이 현장에서 만들어졌는데 이는 이 프로젝트의 강점 중 하나로 자리 잡게 되었습니다.


현재는 수많은 팀들이 이 공간에서 사무업무를 보고 있습니다. 마구간에서 오피스 공간으로의 변경으로 공원의 경제적 및 사회적 순환이 일어나게 되었다고 합니다.
내부인테리어





외부모습

평면도



from archdaily
'실내 건축 디자인 참고 자료 > 실내' 카테고리의 다른 글
| 모던 미니멀한 깔끔한 전시회 디자인 (0) | 2024.01.13 |
|---|---|
| 손님의 시선을 사로잡는 레스토랑 바 디자인 (0) | 2024.01.08 |
| 이게 서점이라고? 맞춤형 시스템이있는 서점 인테리어 (0) | 2023.12.30 |
| 문화적 특징을 반영한 상업공간 인테리어 큐레이션 (0) | 2023.12.29 |
| 창의력 향상을 위한 이색적인 사무실 인테리어 디자인 (0) | 2023.12.18 |
댓글