전반적으로 거실의 대칭적이고 통합된 인테리어를 보여주는 아파트입니다. 공간을 보다 기능적이고 편안하게 만들기 위해 대칭적인 구성과 자연 소재를 활용하였습니다. 또한, 크림색과 갈색 사이의 색조와 나무, 실내 장식에 이르는 질감의 조화를 통해 예술적 조화를 강조하였습니다.
60평대 아파트 인테리어

브라질 상파울루에 위치한 아파트로 10년 동안 집주인의 흔적이 가득 채워져 있습니다. 60평대 평수로 넓고 바람이 잘 통한다는 장점이 있습니다. 리모델링 과정에 있어서 기존 공간을 소유자의 생활방식에 맞춰 설계하는 것을 목표로 설정하였습니다.
따라서 아늑함, 통합, 시대를 초월하는 디자인을 주요 단어로 삼고 이를 가구와 색상, 수집품 및 가족 가보로 구현하도록 노력했습니다.


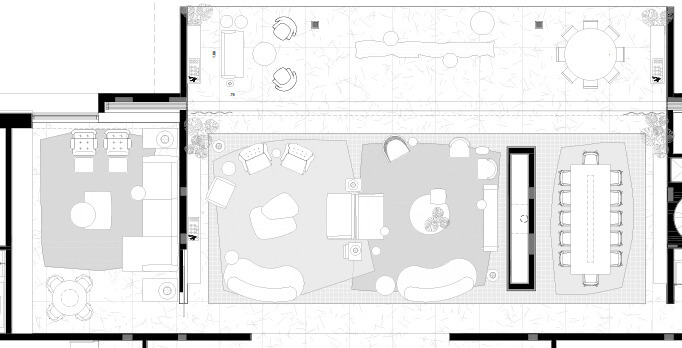
디자인의 주요 목표는 공간을 보다 기능적으로 만들고 새로운 순간에 적응할 수 있도록 하는 것입니다. 이를 위해 거실을 2개의 동일한 부분으로 나누어 방문객 간의 근접성을 높이고 더욱 친밀한 분위기를 조성했습니다.
오른쪽 부분은 길고 곧은 사이드보드에 디자인된 바 전용이며 왼쪽은 벽난로에 초점을 맞추고 있습니다. 길쭉한 직사각형 디자인과 돌 현태의 천연 소재를 사용하여 사이드 보드의 선형성과 대칭을 맞추었습니다.

이 집의 프로젝트는 입구에 배치된 2개의 대형 석회화 대리석 슬라브에서 시작되었습니다. 이는 넓은 나무 패널로 덮여 입구 문의 윤곽을 흐리게 하면서 경치 좋은 전경을 만들었습니다.
이미 집주인의 컬렉션의 일부인 황백색 소파 2개를 중앙 칸막이로 배치하여 공간을 원활하게 통합하며 모임을 장려합니다. 반대쪽 벽을 향해 배치된 소파는 등을 맞대고 모여 2개의 평행한 순환 흐름을 만듭니다.


각 절반은 러그부터 가구 배치까지 동일하거나 동등한 가구 조각으로 장식되어 있으며 입구의 나무 패널 근처에 배치되고, 정원이 연결되는 베란다를 마주 보는 2개의 녹색 소파를 강조합니다. 또한 파울러 뮬러가 특별히 디자인한 러그는 거울 효과가 나타납니다.


카사 카부리의 예술적 조화는 크림색과 갈색 사이의 색조와 돌에서 나무, 실내 장식에 이르는 질감으로 강조되어 비슷하거나 반대되는 것, 가깝거나 먼 것, 연속성 또는 대비의 의미와 속성에 대한 성찰을 촉발합니다.


전반적으로 거실 리모델링을 통해 아늑함, 통합, 시대를 초월하는 디자인으로 공간을 보다 기능적이고 매력적으로 만드는데 기여하였습니다.





출처:archdaily
'닮고싶은 인테리어 디자인' 카테고리의 다른 글
| 모던 클래식 예술과 현대감성을 담은 주택 개조 인테리어 (0) | 2023.12.19 |
|---|---|
| 심플 모던한 10평대 아파트 리모델링 랜선집들이 (0) | 2023.11.27 |
| 드라마촬영장같은 고급스러운 아파트 펜트하우스 인테리어 (0) | 2023.11.13 |
| 집주인 취향가득한 모던 미니멀 인테리어 (0) | 2023.11.12 |
| 철제 격자디자인 깔끔 모던한 별장 인테리어 (0) | 2023.11.11 |
댓글