오늘날 카페에 대한 수요 및 공급이 많이 늘어났습니다. 그에 따라 많은 인테리어 콘셉트의 카페가 나타남으로써 공간을 머무르는 사람들에게 즐거움을 주고 있습니다. 무수히 많은 인테리어 스타일 중에서 꾸준히 유행을 타지 않고 사랑받는 디자인은 아늑함과 편함을 느낄 수 있는 내추럴한 디자인입니다. 이번에 보여드릴 카페는 해외에 위치한 '차' 카페 전문점으로 순수하면서 내추럴한 감성을 느낄 수 있습니다.
닮고 싶은 카페 디자인 : 내추럴 스타일
사우디에 위치한 차 카페입니다. 설계 당시 손님들이 음료를 즐기고 친목을 도모할 수 있는 아늑한 인테리어를 위해 원목, 벽돌, 자갈 등 자연적 요소를 사용하여 공간이 따뜻한 분위기를 연출할 수 있도록 하였습니다. 또한 카페는 실내와 실외를 직접 연결된다는 점이 가장 큰 특징을 갖고 있습니다.
카페의 구성을 살펴보면 하나의 큰 홀로 구성되어 있으며 큰 통창 및 유리문을 통해 시각적 연결성이 이루어져 야외 공간에 바로 접근할 수 있습니다. 야외 테라스석 또한 작지 않은 규모로 구성되어 있음을 확인할 수 있습니다.

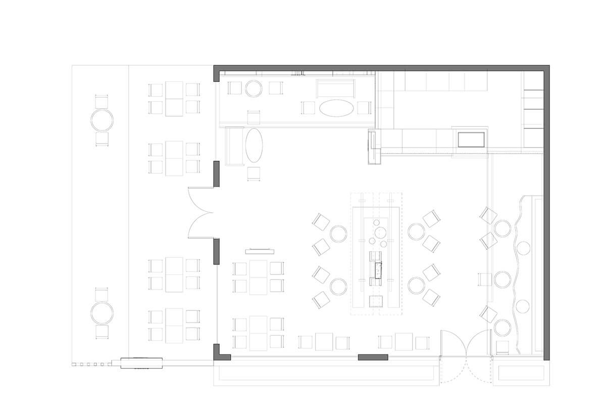
카페의 평면도입니다. 홀에는 약 50명 정도의 손님이 앉을 수 있는 공간으로 많은 손님을 수용할 수 있습니다.
테이블은 2인석, 4인석으로 이루어져 있지만 4인석 테이블의 비율이 더 높기 때문에 단체 및 많은 인원을 감당할 수 있습니다.

카페 구경하기
카페 내부 인테리어를 살펴보면 곳곳에 원목, 자갈, 벽돌, 식물 등 자연적 요소가 많이 사용되었음을 확인할 수 있습니다. 그중 원목 및 벽돌이 가장 많이 쓰여 아늑하면서 따뜻한 분위기가 연출됩니다. 식물이 공간에 색을 불어넣어 주는 역할을 하여 싱그러운 감성을 느낄 수 있습니다.
베이지톤 계열로 톤온톤 인테리어로 심플하면서 환한 분위기를 느끼실 수 있는데, 단조로울 수 있는 느낌을 여러 재질을 사용하여 풍부하게 만들었습니다.

반대쪽 공간에는 식물을 많이 배치하여 내추럴한 감성을 연출하였습니다. 외부에 살짝 보이는 식물을 보아 시각적 연결을 위해 의도적으로 식물을 두었음을 예상할 수 있습니다.
이 공간의 특징을 하나 더 살펴본다면, 소품의 활용입니다. 패브릭 재질의 쿠션을 사용하여 공간이 한층 부드럽게 연출함과 동시에 민무늬가 아닌 북유럽 스타일의 디자인이 들어가 있어 포인트가 형성됩니다.

입구 쪽 공간을 살펴보겠습니다.
기둥 한 편의 바닥에는 자갈과 식물을 두어 자연적 요소를 공간에 끌어들였습니다. 요즘 자갈, 콩자갈을 활용한 인테리어가 유행이니 카페 창업을 고민이신 분들은 이를 활용해 보시는 것도 추천드립니다.
카페 곳곳에 동일한 정사각형 크기의 통창을 두어 시각적 개방감이 좋습니다. 때문에 답답해 보이지 않고 시원한 인테리어를 완성합니다. 또한 가운데 기둥에 거울을 두어 공간이 확장되 보이는 효과를 줌과 동시에 빛을 반사시켜 실내가 더욱 환해 보이는 효과가 있습니다.
그 반대 공간에는 식물이 배치된 좌석과 마찬가지로 벽돌이 사용되었지만, 가벽이 덧붙어져 소품을 전시할 수 있도록 디자인되었습니다. 가운데에는 카페의 상호명을 넣어 어떤 공간인지 알 수 있도록 디자인되어 있네요!
이 카페의 재미있는 요소 중 하나는 테이블입니다. 사격형 및 원형 디자인으로 평범하지만, 다리를 잘 살펴보시면 공통적으로 스톤이 들어가 있는 장식적 요소를 확인할 수 있습니다. 가구에도 내추럴한 콘셉트를 놓치지 않았다는 점을 보아 초기 인테리어 콘셉트 계획에 있어서 가구 요소까지 꼼꼼하게 기획했음을 알 수 있네요.


카페의 전체적인 외부모습입니다. 가운데 입구를 중심으로 양쪽의 정사각형 통창이 균형이 잘 이루어지고 있으며 외부공간에도 벽돌 및 식물, 원목이 사용되었습니다. 유리 및 원목의 격자 문과 담벼락으로 벽돌이 이용되었습니다. 바닥은 낮은 계단을 두어 단 차이를 형성하였습니다. 평탄한 지붕 디자인이지만, 앞으로 길게 차양이 나와있는 디자인으로 위에는 고리버들을 두어 새로운 구조물을 만들었습니다.

출처: Behance
'닮고싶은 인테리어 디자인' 카테고리의 다른 글
| 우아한 30평대 아파트 인테리어 리모델링 (0) | 2023.07.17 |
|---|---|
| 깔끔한 10평대 아파트 인테리어 미니멀리즘 디자인 (0) | 2023.07.14 |
| 욕실 인테리어 디자인 가이드 (0) | 2023.07.06 |
| 콘크리트 주방이 인상적인 아파트 인테리어 사례 살펴보기 (0) | 2023.07.05 |
| 따라하고 싶은 고급스러운 신혼 침실 인테리어 스타일 (0) | 2023.07.04 |
댓글