호치민에 위치한 고급스러운 우드 스타일의 레스토랑 인테리어입니다. 현지 프랑스 시장에서 영감을 받아 디자인 및 설계를 진행하였으며 총 3층으로 구성되어 있습니다.

- category interior
- date 2023
- area 1057㎡
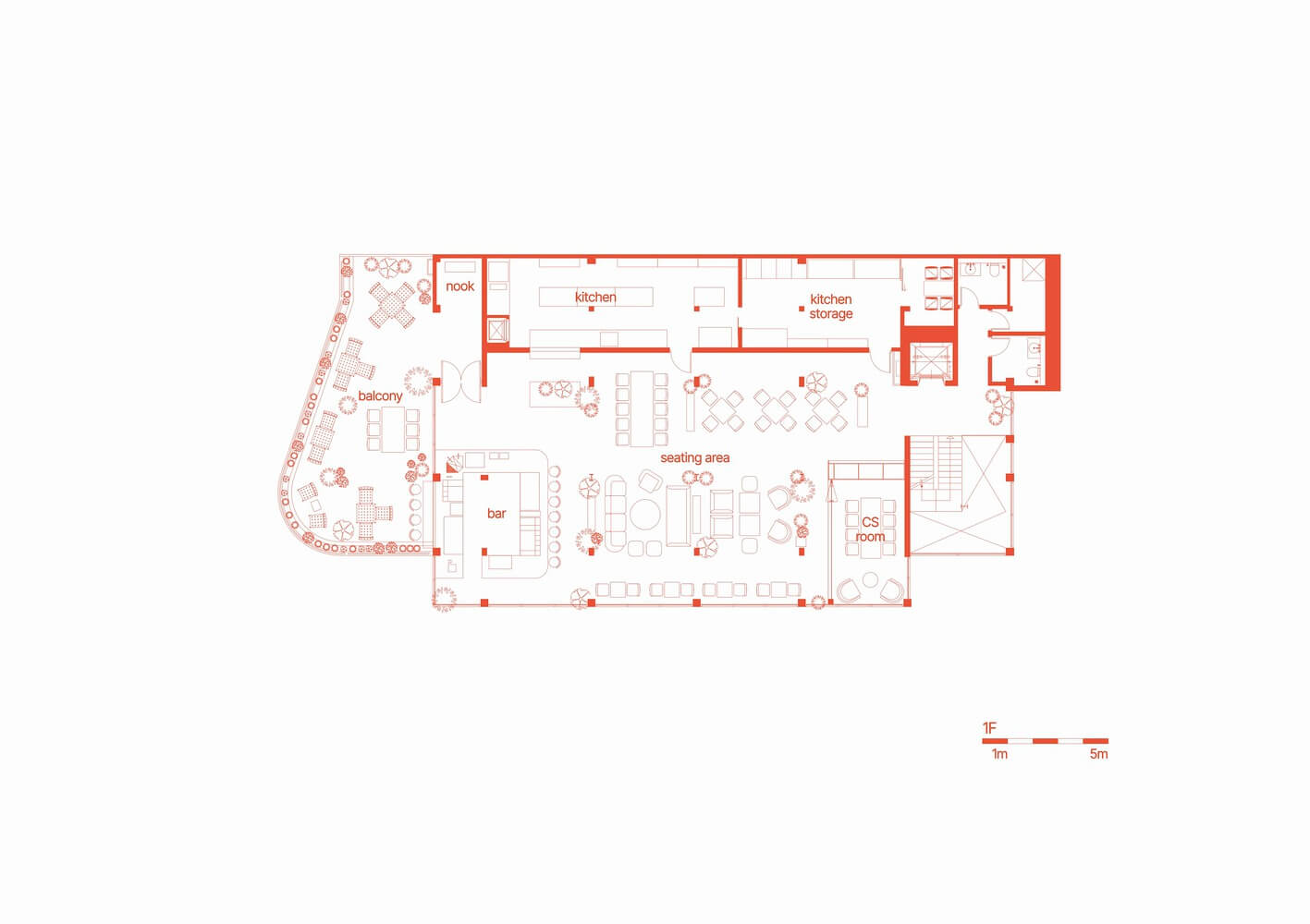
3층으로 이루어져 있으며 서로 다른 구역으로 구분되어 있습니다. 각 구역은 응집력 있는 연결을 유지하면서 서로 다른 목적을 수행합니다.
1층엔 고객이 쇼핑을 경험할 수 있는 Boulangerie & Patisserie가 있으며 위로 올라가면 호텔 라운지를 연상시키는 바와 라운지가 위치하여 맛있는 음식을 맛볼 수 있습니다. 최상층에는 직원공간과 연구공간이 존재합니다.




파티세리 공간입니다.
짙은 원목을 사용하여 맞춤제작하여 고급스러운 실내가 연출됩니다.



곡선 디자인으로 유연함을 나타내며 간접조명을 설치하여 실내의 분위기를 한 층 풍부하게 만들어줍니다.
넓은 공간으로 인해 다양한 종류의 케이크를 구경하고 전시할 수 있으며 매일 아침 굽는 디저트를 구경할 수 있습니다. 베이커리에서 나는 향기로운 빵 냄새로 하여금 디저트 구매를 촉진시키는 효과도 있습니다.

원목은 우리에게 친근한 소재로 내추럴하면서 고유 나뭇결로 고급스러운 분위기를 형성하는데 도움이 되어 많은 공간에 사용하고 있습니다. 이 레스토랑의 경우 적색의 원목을 사용하여 캐주얼하면서 따뜻한 분위기를 형성하고 있습니다.



1층에 위치한 바입니다.
다찌석으로 구성되어 있으며 주변이 통창으로 구성되어 개방감이 느껴집니다.
공간 전반에 가구와 식물 선정에 세심한 주의를 기울여 편안한 좌석으로 음식을 먹거나, 휴식을 취할 수 있도록 하였습니다. 특히 식물로 인해 공간을 풍요롭게 만들며 내추럴하고 고급스러운 분위기를 연출하였습니다.



디자인은 단순하지만 붉은 원목 패널과 네온으로 브랜딩 이미지를 확고하게 연출하였으며 사람들의 눈길을 사로잡았습니다.


외관은 내부와 다르게 아이보리 톤의 밝고 화산 이미지로 내부와 대조적입니다.
외부 파사드만 보면 아늑하고 휴양지에 온 듯한 익스테리어로 사람들의 발목을 붙잡는 디자인입니다.

오늘 소개해드린 레스토랑은 프랑스 현지 시장의 콘셉트와 환경을 조화롭게 매치하여 베이커리 및 파티세리에 대한 열정과 사랑을 나타냈습니다. 맛있는 음식과 매력적인 건축이 믹스매치되어 기억에 남을만한 장소로 사람들의 취향을 만족시키고 있습니다.
출처: Archdaily
'실내 건축 디자인 참고 자료 > 실내' 카테고리의 다른 글
| 유럽과 동양의 만남 옷가게 쇼룸 인테리어 디자인 (0) | 2023.10.29 |
|---|---|
| 자연과의 몰아일체 카페 디자인 인테리어 (1) | 2023.10.23 |
| 게스트하우스 숙박 미니멀 인테리어 (1) | 2023.10.04 |
| 베이커리 리모델링 개조를 통한 브랜딩 인테리어 (1) | 2023.10.03 |
| 옷가게 미니멀 인테리어 Lonely Melrose (0) | 2023.08.17 |
댓글