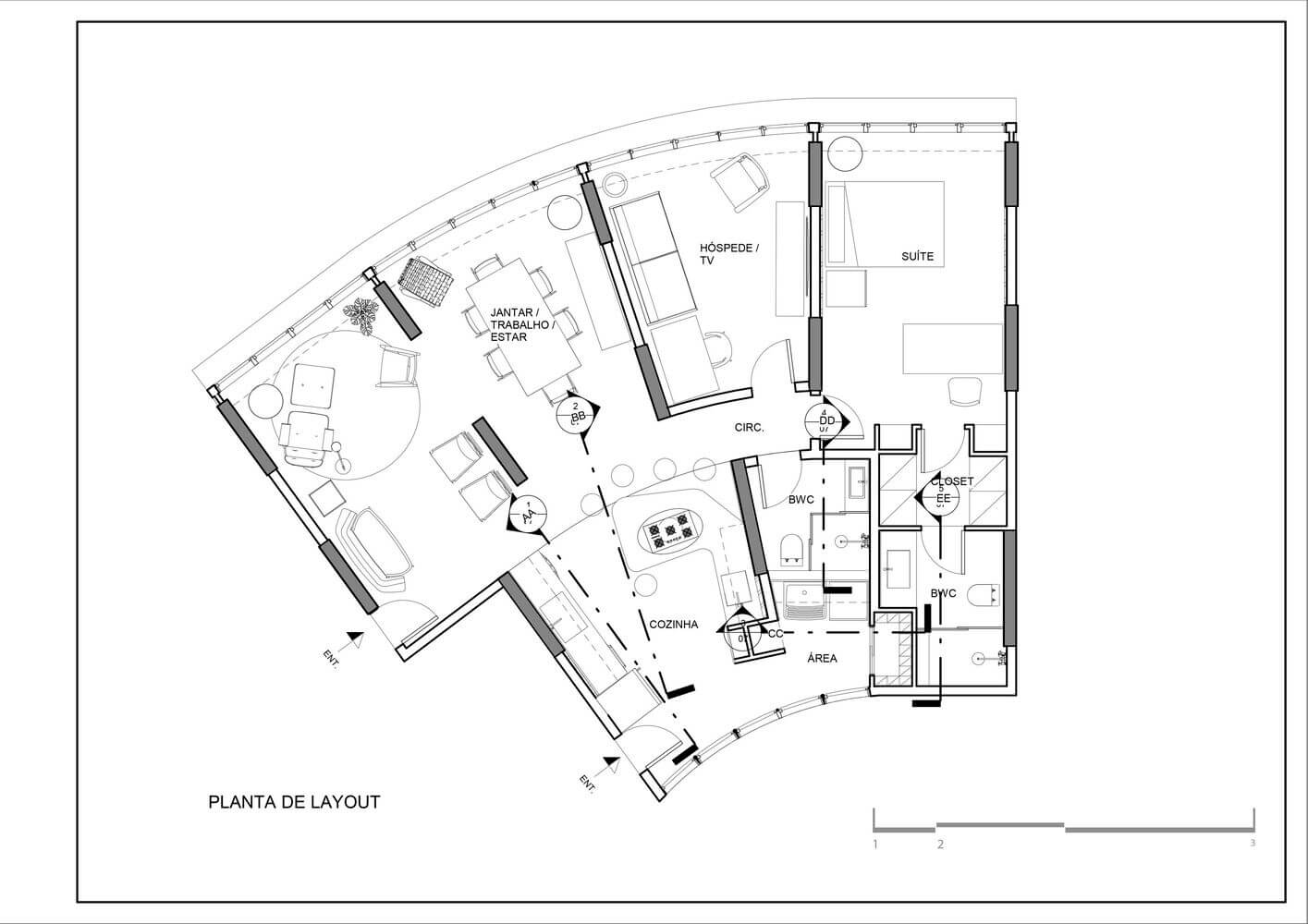
집주인의 요구에 맞춰 작게 나뉘어 있던 방들을 통합한 후 콘크리트, 목재 재료를 사용하여 공간을 단순하게 리모델링하였습니다. 콘크리트 구조물로 인해 인더스트리얼한 분위기가 연출된다는 것이 특징이며 벽이 없어짐으로써 자연광을 공간 깊이 유입할 수 있게 되었습니다.
30평대 아파트 리모델링, 온라인집들이

- categoty: interior
- area: 100㎡
브라질에 위치한 100㎡의 면적을 가진 아파트입니다. 약 30평대 아파트로 다양한 평면도를 제공하며 지상층에는 상업 지역이 있습니다.
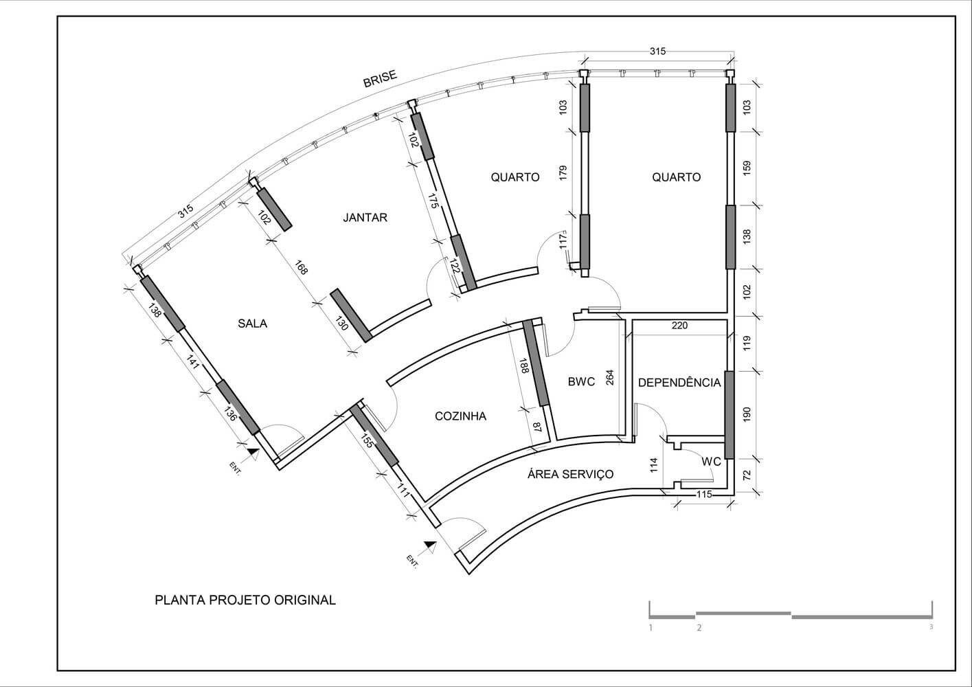
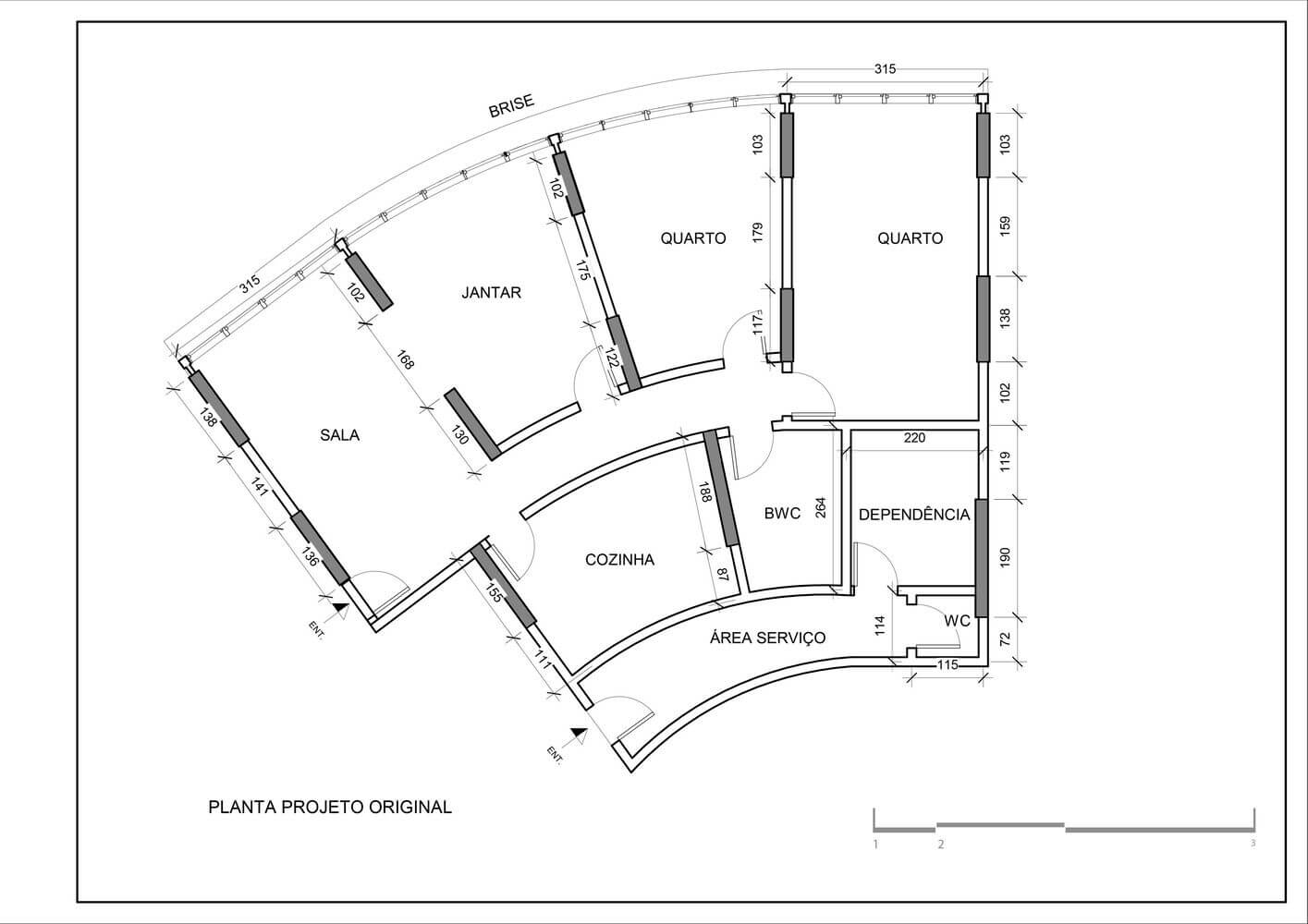
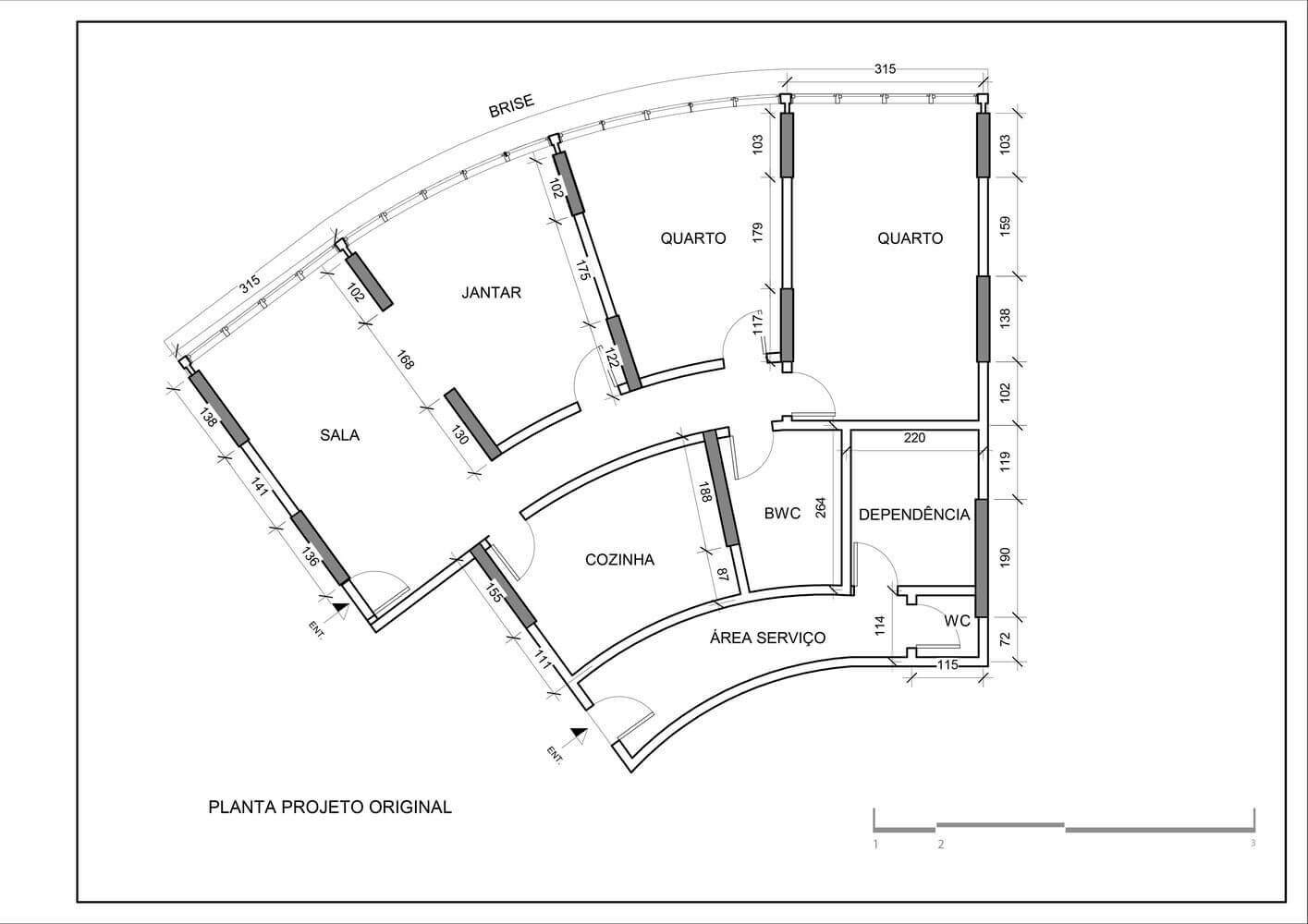
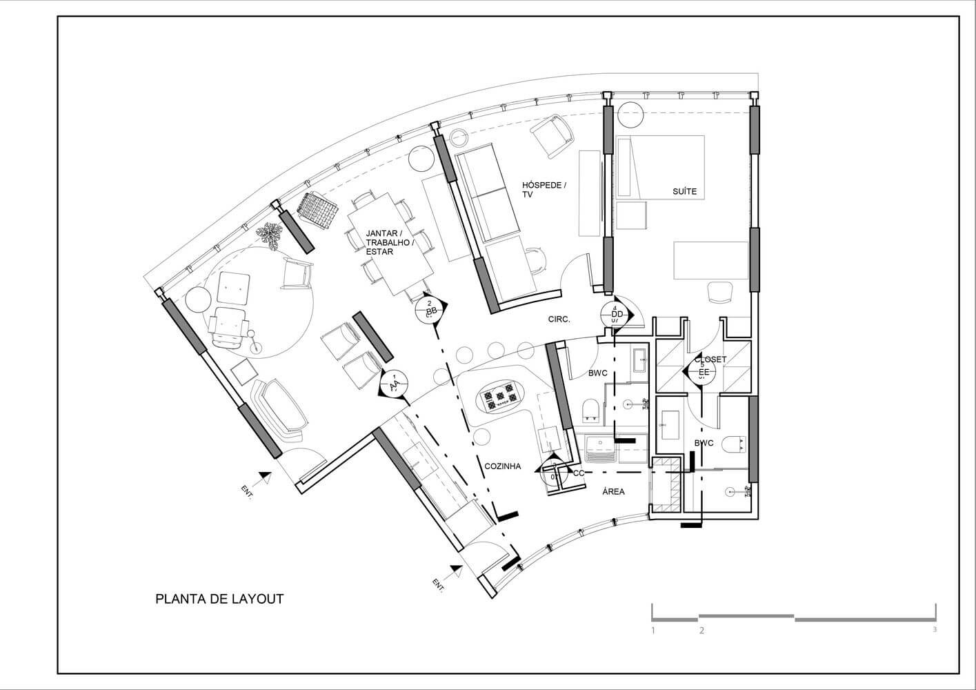
해당 아파트의 경우 작은 방들로 쪼개져 있으며 형태가 부채꼴 모양이라는 특징이 있습니다. 리모델링의 목표는 나누어져 있던 작은 공간들을 통합하고, 벽 뒤에 감춰진 콘크리트 구조물을 드러낸 후 바닥재를 최대한 통일시켜 공간을 단순화시키는 것입니다.

이를 위해 그 과정에 있어 새로운 개입과 공간의 유동성을 보장하기 위해 특이한 재료와 형태를 사용하기로 했습니다. 자연 채광과 건물 맞은편에 위치한 시립 공원의 전망을 확보하기 위해 창을 크게 만들어 자연광의 유입을 적극적으로 받아들임으로써 일정한 조도를 유지하며 개방성을 형성하였습니다.



곡선 방향을 따라 바닥재를 동일하게 사용하여 사용자에게 흐름을 부여합니다. 콘크리트, 목재 바닥과 주방의 스테인리스의 조합은 현대적이면서도 잘 어울립니다.

독특한 형태와 네이비, 오렌지 색상의 대비되는 색상을 사용하여 특이한 분위기를 형성합니다. 바닥의 경우 목재를 사용하지 않아 공간 분리의 효과가 나타납니다.


침실의 경우 화이트와 목재로 구성되어 있으나 독특한 패턴의 침대 헤드, 개성 있는 액자를 배치함으로써 집주인의 개성을 나타냈습니다. 창문의 경우 거실과 다르게 통창으로 설계하지 않아 안전성이 느껴지며 화이트 벽면으로 깔끔한 분위기가 연출됩니다.

화장실 인테리어의 경우 콘크리트, 노란색과 거울의 패턴이 눈길을 사로잡습니다. 레트로한 감성과 팝 감성이 느껴지며 한국 화장실과는 다른 느낌이 드네요.
평면도


출처:archdaily
'닮고싶은 인테리어 디자인' 카테고리의 다른 글
| 미니멀라이프 화이트 우드가 돋보이는 고혹적인 인테리어 (0) | 2023.11.04 |
|---|---|
| 자연과 어우러지는 평면을 가진 미니멀 아파트 인테리어 (0) | 2023.10.28 |
| 아치를 활용한 아파트 미니멀인테리어 리모델링 (1) | 2023.10.24 |
| 아파트 시골집 리모델링으로 아늑한 나만의 집 완성 (0) | 2023.10.22 |
| 구축 아파트 리모델링 지속가능한 미니멀 디자인 (1) | 2023.09.27 |
댓글