책을 펼치면 머릿속에서 단어가 소용돌이칩니다. 창문을 열면 자동차와 기차가 도시와 도시를 오가며 달립니다. 이러한 활동이 일어날 때 집 안과 밖은 매끄럽게 연결됩니다. 소유하지 않는 것이 트렌드가 된 세상에서 이 건축가의 집은 과거의 자신을 따라가며 오랜 시간 동안 쌓아온 소중한 물건들로 둘러싸여 계획되었습니다.
10평대 아파트 리모델링

도쿄 스카이트리 기슭의 인구 밀도가 높은 주거 지역에 위치해 있습니다.
기존 객실은 이미 부동산 재판매 회사에서 리노베이션을 마친 상태로 평면 구조의 아파트가 가진 독특한 잠재력을 억누르고 있다는 느낌이 들었습니다.
이번 리노베이션에서 우리는 이미 개조된 마감재를 특정 지형이나 맥락으로 인식했습니다. 전체 도시 활동의 일부로 확장되어 최소한의 개입으로 전체 공간에 영향을 미치면서도 기존 맥락에 '기생'하여 최대의 영향을 미치는 개인 생활공간의 본질을 탐구하는 것이 목표였습니다.


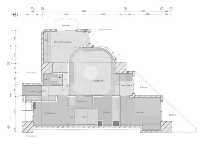
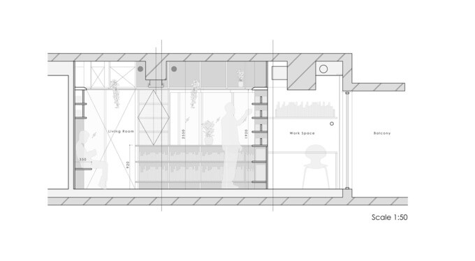
이 방의 새로운 거주자는 많은 양의 책을 소장하고 있었고 다양한 소중한 물건들에 둘러싸인 삶을 갈망하고 있었습니다. 그래서 저희는 평면도의 중심에 원형 책장을 배치하는 아이디어를 구상했습니다.

360도로 둘러싸인 이 중앙 공간을 거실로 만들면 거주자들이 자신의 소지품과 생생하고 상호 작용하는 관계를 맺을 수 있을 것이라고 생각했습니다.
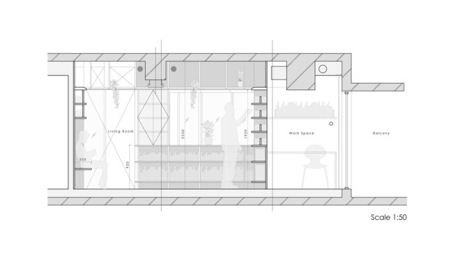
따라서 외벽의 독특한 곡선을 반영하여 내부 공간으로 가져오기로 결정했습니다. 외벽의 곡선을 반영한 원형 책장이 공간의 골격을 형성합니다. 동선, 집기, 벤치 등이 이 골격에 통합되어 작은 방, 복도, 주방, 화장실, 퇴창 등 기존 요소들이 책장과 얽히고설키며 어우러지게 되었습니다.



단순히 수익성만을 우선시하는 리모델링이 아닌, 최소한의 변경을 통해 기존 기능을 최대한 활용하면서 편안한 공간을 만들고자 노력했습니다. 이러한 추구에는 어느 정도의 역설이 내포되어 있습니다.


그래서 우리는 리퍼브 비닐 벽지와 나무 같은 비닐 바닥 타일의 미묘한 질감이나 균일함을 인식하고 활용했으며, 이를 프로젝트의 지형과 토대라고 생각했습니다. 이러한 접근 방식은 신축 건물이나 전면적인 리노베이션에서는 불가능한 특성을 긍정적으로 수용할 수 있게 해 줍니다.

최근 부동산 재판매 업체들이 유망한 중고 아파트에 획일적인 리모델링을 빠르게 적용하고 있는 추세입니다.
이 리모델링은 도시 내 시간적, 공간적 간극을 영리하게 활용한 부분 리노베이션을 통해 소중한 물건들로 둘러싸인 나만을 위한 특별한 공간을 얻고자 하는 마음에서 출발했습니다. 이 프로젝트는 부분 리노베이션에 대한 새로운 접근 방식을 제시하는 것을 목표로 합니다.






from archdaily, DepL
'닮고싶은 인테리어 디자인' 카테고리의 다른 글
| 화이트 원목 인테리어의 밝은 32평 아파트 리모델링 (0) | 2024.03.28 |
|---|---|
| 세련된 원목 고급 주택 인테리어 리모델링 증축 (0) | 2024.03.17 |
| 편안한 느낌의 30평대 미니멀 아파트 인테리어 디자인 (0) | 2024.03.09 |
| 자연의 지형을 활용한 콘크리트 주택 건축 인테리어 (0) | 2024.02.26 |
| 예술가의 창의력을 향상시키는 심미적 미니멀 인테리어 리모델링 (0) | 2024.02.24 |
댓글